Универсальное помещение
Московский проспект, 1а Показать на карте
Московский проспект, 1а Показать на карте
Ленинградский район
Калининград
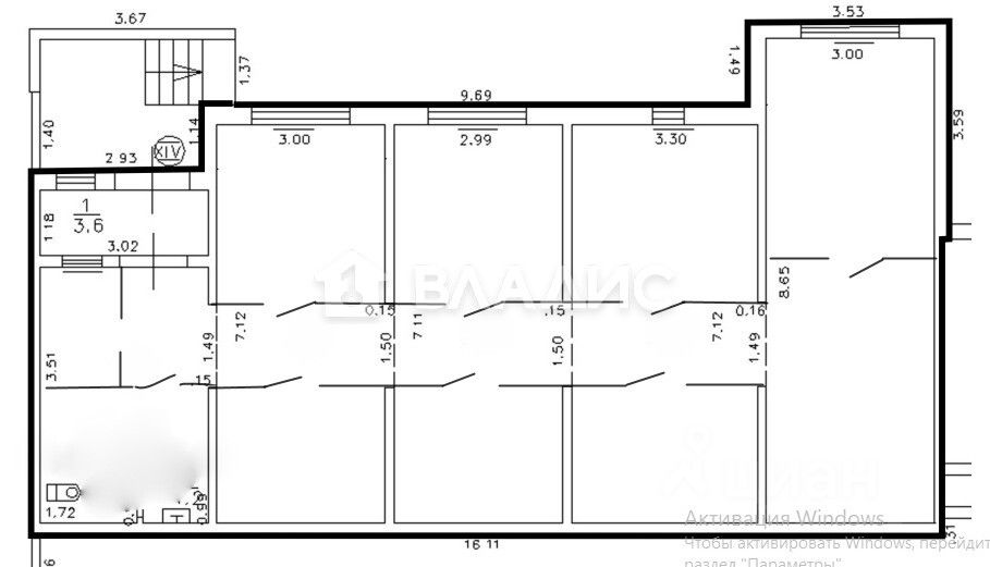
Арт. 32702018 Продается помещение свободного назначения площадью 120,3 м2 + вынос 10 м2, в отдельно стоящем здании небольшого торгового центра, расположенного на первой линии одной из главных магистралей города - Московском проспекте, в пяти минутах от делового центра.Отличная транспортная доступность - здание ТЦ находится на границе Центрального и Ленинградского районов, в привлекательном с коммерческой точки зрения месте, украшением которого является ландшафтный Дендропарк - ботанический сад Альбертины.Напротив объекта расположен Калининградский Филиал Санкт-Петербургского университета МВД РФ, в шаговой доступности частная детская поликлиника ''Эдкарик'', большой жилой массив, школа-лицей 23. По соседству в комплексе расположены аптека, пункт выдачи заказов маркетплейса ''Озон'' и небольшой продуктовый магазин.Земельный участок под зданием площадью 844 м2 находится в собственности владельцев ТЦ. Доля владельца продаваемого помещения в праве собственности на земельный участок составляет 638/1000.Планировка помещения представляет собой торговый зал, кабинет и санузел. В помещении витринные окна и две входных группы.Инженерное обеспечение включает в себя:Центральное водоснабжение и канализация,Центральное электроснабжение. Выделенная электрическая мощность на помещение - 8 кВт (общая на здание - 32 кВт),Электрическое отопление,Приточно-вытяжная вентиляция,Слаботочные сети.Не упустите возможность за небольшие деньги стать владельцем прибыльного актива, который будет приносить доход долгие годы!Полное юридическое сопровождение сделки.Звоните, пишите, организуем показ в любое удобное для вас время.
120 м2
- Показать контакты
- Добавить в избранное
120 м2
16 000 000
133 333 /м2
