Универсальное помещение
Больничная, 44 Показать на карте
Больничная, 44 Показать на карте
Ленинградский район
Калининград
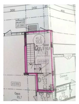
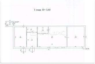
Рассмотрим продажу отреставрированного отдельно стоящего 4-этажное здания в самом центре Калининграда.Адрес местоположения объекта: ул. Больничная 44, Калининград.Год постройки: до 1945 - является объектом культурного наследия.На текущий момент сдается в аренду под медицинский центр (получена мед.лицензия)Планировка:Три полноценных этажа по 90 м2 с высотой потолков 2,9 м2.На каждом этаже по три изолированных помещения (14-25 м2) с мокрыми точками.Цоколь (высота потолков: 2 м2):2 изолированных помещения.Полноценный совмещенный санузелСервернаяБойлернаяТехнические характеристики:Отопление: автономное газовое (от двухконтурного котла)Водопровод: центральныйКанализация: центральнаяЭлектричество: 30 кВтТелефония (в том числе внутренняя)Охранная сигнализацияВ 2014 году проведен капитальный ремонт здания: заменена электропроводка, реконструированы системы отопления, водоподготовки и водоотведения.Обновлен фасад здания, проведена реконструкция крыши.Проведен ремонт дренажной системы.Огороженная территория, есть место под стоянку 3-х автомобилей.Рядом со зданием много места для парковки автомобилей.Отличная инвестиция, возможна продажа готового бизнеса.Подходит под широкий спектр ведения бизнеса.Прямая продажа.СЕNТURY21 крупнейшая международная компания, с представителями более чем в 90 странах мира с русскоговорящими агентами. Своим клиентам мы предлагаем приобретение недвижимости за рубежом.СОПРОВОЖДЕНИЕ СДЕЛКИ ДЛЯ ПОКУПАТЕЛЯ БЕЗ КОМИССИИ!
342 м2
- Показать контакты
- Добавить в избранное
342 м2
70 000 000
204 678 /м2
