Универсальное помещение
Пролетарская, 23 Показать на карте
Пролетарская, 23 Показать на карте
Ленинградский район
Калининград
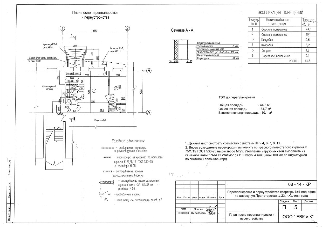
Собственник. Помещение под офис, салон, магазин, не большую торгово-сервисную организацию.45м2, сан.цузел, маленькая кухонька без плиты. Кондиционер. Сигнализация, Видеонаблюдение (регистратор надо только). 2 основных + 2 складских или 1 основное + 3 складских помещения.Почти всю мебель что на фото, готов оставить за малую мзду к аренде или продать(все что не надо вывезу) . Есть два телефонных городских номера, без лимитный шустрый интернет с выделенным IP(все что не надо отключу) Коммуналка летом примерно 2000+электричество/связь, зимой 5000+электричество/связь, оплата по квитанциям отдельно.Для компьютерщиков грабительские скидки, и место намоленное, здесь долго и усердно продавали и ремонтировали технику, обладает особенной духовной силой и благодатью.Кроме того это экологически чистый район, озеро рядом погулять, арбитражный суд КО рядом, и вообще много чего рядом.Мелкие проблемы и граффити по фасаду, косметику по внутрянке делаю прямо сейчас (стены будут серые).
45 м2
- Показать контакты
- Добавить в избранное
45 м2
55 000 /мес.
1 222 /м2
