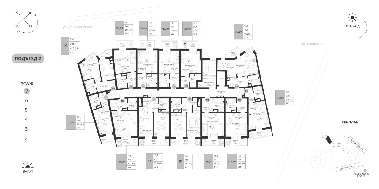
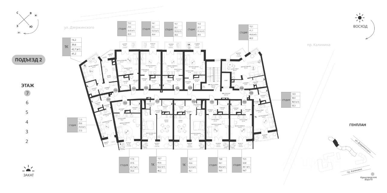
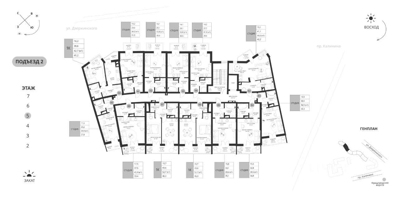
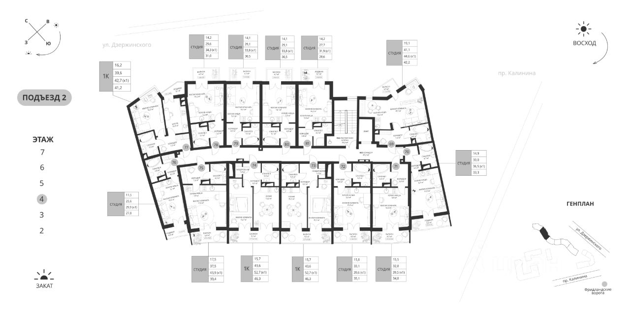
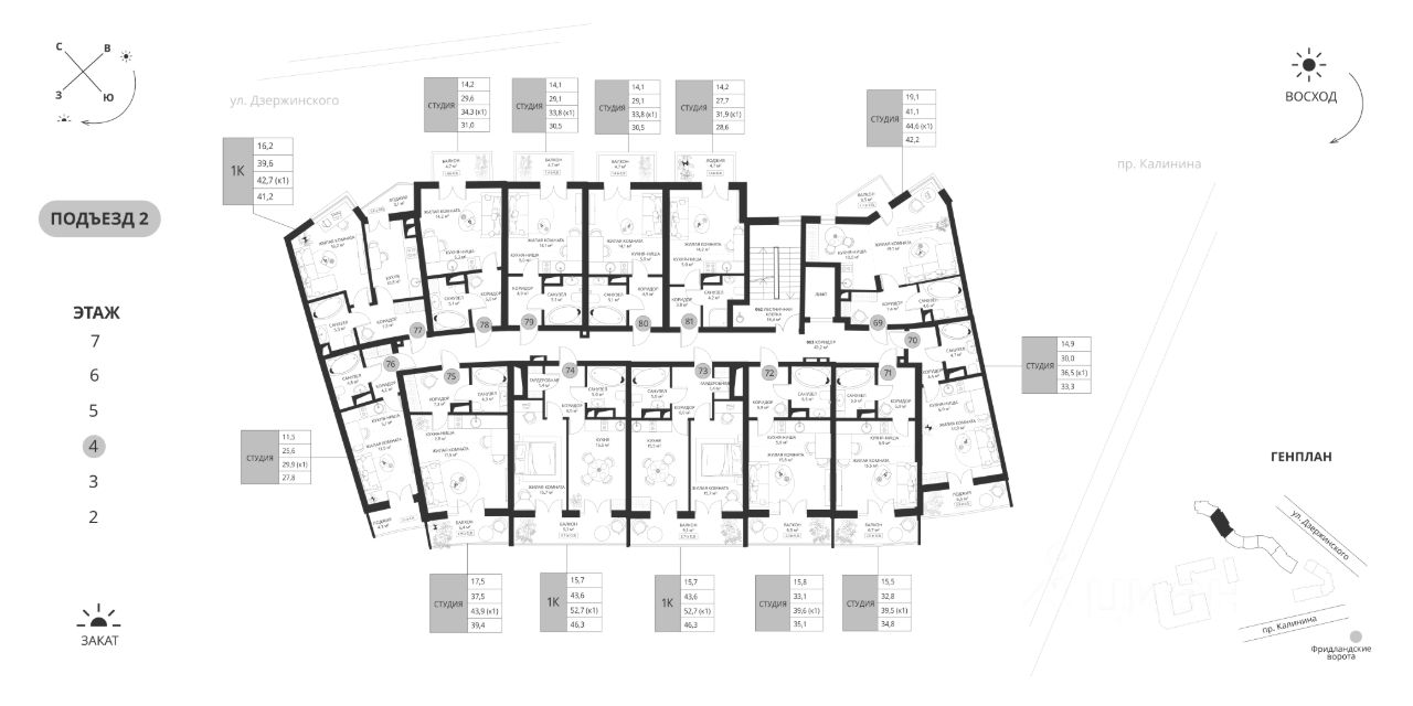
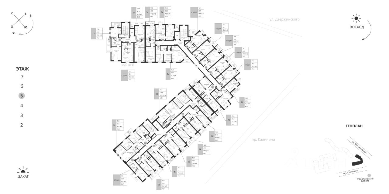
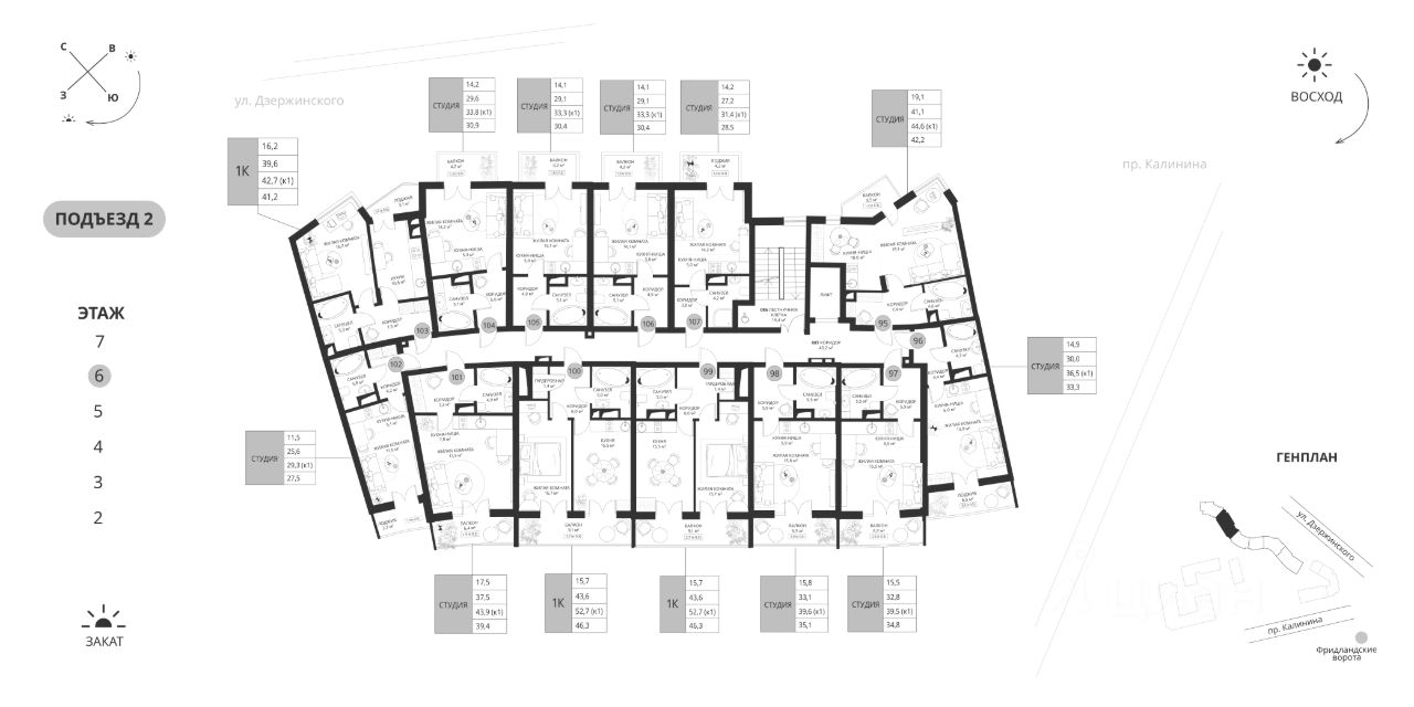
2-к квартира Показать на карте
Ленинградский район
Калининград
Продаётся 2-комнатная квартира в строящемся доме (Дом 1 очередь 8), срок сдачи: IV-кв. 2026, общей площадью 61.49 кв.м., на 8 этаже. Жилой квартал ''Невский парк'' - один из самых зеленых жилых кварталов Калининграда.Квартал, строящийся по принципу ''город в городе'' впечатляет своим масштабом и одновременно продуманностью всех деталей, как самого комплекса в целом, так и отдельно стоящих домов, и квартир. Озеленению здесь, действительно уделено особое внимание, и название ''Невский парк'' говорит само за себя. Квартиры в этом жилом квартале выгодная инвестиция как в качество собственной жизни, так и в перспективе дальнейшей продажи.ЖК ''Невский парк'' - современные, качественные, красивые дома с архитектурной подсветкой и индивидуальными дизайнерскими решениями в зонах общего пользования, включая подъезды.Квартал строится надёжной компанией ЗАО КалининградСтройИнвест'', с 29-летним опытом на строительном рынке. В эксплуатацию уже сданы первые дома квартала, в которые уже заселились счастливые собственники.Преимущества и основные характеристики жилого квартала:Удобное расположение:-10 минут до центра города-20 минут до аэропорта ''Храброво''-30 минут до берега моряЖилье комфорт-класса, в котором предусмотрено всё для удобства и уюта проживания:умный домофон и видеонаблюдение для вашей безопасности,возможность установки кондиционеров и антенн без ущерба для фасада здания.Спорт и активный образ жизни в ''Невском парке'':-велодорожки на протяжении всего квартала,-велопарковка и зона обслуживания велосипедов с подкачкой колес в каждом доме,-площадки для различных видов спорта.Здесь всё продумано до мелочей:Развитая инфраструктура внутри квартала:-современные игровые площадки,-зона выгула собак,-закрытые колясочные и велосипедные помещения, доступные только для жителей,-санузлы в каждом доме для удобства жильцов.Особенные детали для уюта и комфорта проживания:-автономное отопление,-углубленные лоджии и французские балконы,-высококачественные двери индивидуального дизайна,-заниженные подоконники на высоте 700 мм,-цветной оконный профиль производства Германия и двухкамерные стеклопакеты,-двойной воздухообмен на кухне.Просторные красивые подъезды и общественные пространства внутри дома:-уникальный и эффектный дизайн,-доступная среда - входы без ступеней и проходные лифты,-алюминиевые входные группы с двойным магнитом,-бесшумные лифты с повышенным скоростным режимом,-энергоэффективное освещение, установленное на датчиках движения,-навигация и шумоизоляция лифтовых шахт.Воспользуйтесь возможностью жить в одном из самых интересных, безопасных, красивых и комфортабельных жилых комплексов Калининграда - в домах ''Невский парк''!Сделайте ваш выбор в пользу высокого качества жизни.Сданные дома :+ Безналичный расчет+ Рассрочка на 2 года+ Ипотека под готовое жилье+ Материнский капитал+ Военная ипотекаСтроящиеся дома :+ Субсидированная ипотека (IT-ипотека и семейная ипотека)+ Материнский капитал+ Военная ипотекаНе упустит
61 м2
8 / 10 этаж
Кирпич
- Показать контакты
- Добавить в избранное
61 м2
8 / 10 этаж
Кирпич
8 340 000
135 632 /м2
Новостройка,
IV-2026
IV-2026
