2-к, Псковская, 21 Показать на карте
Центральный район
Калининград
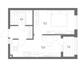
Продается квартира площадью 73.7 м² на 1 этаже 7 секции в Дом на Красной от компании ГК ''ТРЕСТ''. Площадь кухни 19.3 м². Жилой комплекс комфорт-класса ''Дом на Красной'' расположен в Центральном районе Калининграда на пересечении улиц Красная и Псковская. Жилой комплекс включает в себя два дома высотой 8 этажей. Срок сдачи намечен на 4 квартал 2026 года. Жилой комплекс ''Дом на Красной'' имеет среднюю комфортную этажность. Благодаря геометрическим формам, заложенным в архитектурный облик зданий, их конфигурация образует почти закрытую дворовую территорию. Фасад домов выполнен из комбинированных материалов (декоративная штукатурка и плитка под кирпич) в динамичном стиле с выступающими и утопленными частями и панорамными окнами. Архитектуру жилого комплекса подчеркивает декоративная подсветка фасада. В каждом подъезде созданы помещения для хранения колясок, велосипедов и спортинвентаря, которыми могут пользоваться все жильцы.Планировочные решения предусматривают квартиры с просторными кухнями-гостиными, мастер-спальнями и гардеробными. В квартирах, которые передаются покупателям без отделки (''Серый ключ''), предусмотрены открытые террасы с видом на Школьное озеро или красивый внутренний двор, панорамные окна, лоджии с холодным остеклением, потолки высотой 2,72 м. Для удобства автомобилистов созданы подземные паркинги: на 136 машиномест и кладовые помещения. В паркинг можно будет спуститься на лифте комфортно людям, безопасно автомобилям!
73 м2
1 / 8 этаж
Кирпич - монолит
- Показать контакты
- Добавить в избранное
73 м2
1 / 8 этаж
Кирпич - монолит
9 581 000
130 000 /м2
Новостройка,
IV-2026
IV-2026
