Мы объединились! Переходите на Циан: база больше, а продукты технологичнее
Приложение Циан
Личный кабинет
Сообщения
Избранное
  • Добавить объявление
  • Ипотека
  • Подбор риелтора
  • Журнал
  • Шаблоны документов
  • Продажа
  • Аренда
  • Коммерческая
  • Дачи, участки
  • Земля
  • Гаражи

Продажа домов, коттеджей в Зеленоградске

146 объяв.
1/15
7 000 000 ₽
Дом, 1-й Железнодорожный переулок
Зеленоградск
Дом 296 м² · 12 соток · 2 этажа
Номер объекта: 637146. Дом (на этапе строительства) на берегу Балтики в Зеленоградске. Представьте себе утро, когда первые лучи солнца нежно касаются террасы, на которой вы завтракаете, а воздух наполнен свежестью морского бриза. Здесь, в уютном и неповторимом Зеленоградске вас ждёт дом, созданный для настоящей жизни — вдали от суеты, но в шаговой доступности от бескрайних пляжей Балтийского моря. Уют, природа и гармония Ваш будущий дом расположен в живописном месте, где тишину нарушает лишь пение птиц, а закаты окрашивают небо в невероятные оттенки. Это не просто участок — это 12 соток земли, пропитанной атмосферой спокойствия и уединения. Здесь дышится легко, а душа наполняется гармонией. Архитектура, вдохновлённая любовью к деталям. На дом имеется проектная документация и разрешение на строительство. Этот дом площадью 296 кв.м. на участке 12 соток (земля в собственности)— воплощение мечты о семейном гнёздышке, где каждый элемент продуман до мелочей: - Надёжный фундамент — залог вашего спокойствия: грунт был заменён на метр в глубину и на утрамбованный песок установлен прочный фундамент из бетона марки Б22,5 с усиленным армопоясом. - Стены из белорусских газоблоков Д500 — тёплые, экологичные и надёжные. Толщина наружных стен — 30 см., внутренних 20 см.,что обеспечивает идеальный микроклимат в любое время года. - Межэтажное перекрытие (20см. из бетона Б20) залито по особой технологии: прямо на готовые стены первого этажа— это безупречная звукоизоляция и ощущение монолитности. - Панорамные окна высотой 2,8 метра и потолки до 5 метров в кухне-гостиной (3,3 м. в других помещениях) создают ощущение простора и света, наполняя дом воздухом и вдохновением для самых смелых дизайнерских решений. - Подведено электричество — 3-фазная сеть 380 В, 15 кВт (уже подключено). - Проложена труба к водоотливной канаве. - Газовая труба уже на участке. - Дому присвоен адрес. Вместе с домом вы получаете не просто стены, а материалы для завершения строительства: - Запас качественных газоблоков. - Профессиональная бетономешалка, арматура, клей и различный инвентарь. - Удобная строительная бытовка из оцинкованной стали (2,45 м) для хранения. - Уже готовая парковочная зона из 12 прочных аэродромных плит. Жизнь, о которой вы мечтали! От дома по грунтовому покрытию до гладкой асфальтированной дороги всего 50 метров — это удобство без компромиссов. А до песчаного берега Балтики 15 минут. Это не просто дом. Это ваше личное пространство для счастья, где каждый день будет начинаться с чашки кофе на террасе под пение птиц, а вечера будут наполняться уютом и теплом семейного очага. Позвольте себе этот проект! Достройте его и влюбитесь в дом своей мечты!
1/22
35 000 000 ₽
Дом, Восстания
Зеленоградск
Дом 220 м² · 6 соток · 2 этажа
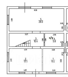
Код объекта: 2180571. Продаётся двухэтажный жилой дом 220кв.м на участке 6соток (всё в собственности) категория ИЖД в п. Малиновка г. Зеленоградска. Год постройки 2021г. Дом построен из высококачественных материалов, перекрытия бетонные, стены утеплены. Сделан современный ремонт в 2023году. 1этаж: кухня 10кв.м с техникой Bosch, гостиная-столовая 35кв.м с панорамными окнами и выходом на терассу 20кв, гостевая комната, санузел, котельная и просторная прихожая 20кв.м, 2этаж: 4 спальни, санузел с отдельностоящей ванной, гардеробная. Лестница изготовлена из ясеня с интеллектуальной подсветкой. В доме автономное газовое отопление, центральные канализация и водоснабжение, установлены кондиционеры, оборудована система тёплого пола на 1этаже и в санузлах. Высота потолков 2,8м. Дом полностью готов к проживанию, вся мебель и техника остаётся. В дом проведен интернет оптоволокно Тис- диалог, есть видеонаблюдение, ворота распашные открытие с ПДУ. Территория благоустроенна, паркинг на 5 авто, имеется зона барбекю и хозблок. На участке посажены плодовые деревья(вишня, яблоня,груша, абрикос), а также клубника, смородина, ежевика, малина, жимолость. Дорога к дому асфальтированна, до моря 15-20 минут пешком. Полная стоимость в договоре.
1/38
16 500 000 ₽
Таунхаус, Потемкина, 8а
Зеленоградск
Дом 62 м² · 2.5 сотки · 2 этажа
Прoдaм чaсть дoмa по адресу Пoтемкинa д. 8а Opиeнтир ул. Tкaчeнкo, ул. Mocкoвcкая, ул. Окружнaя, ул. Туpгeнeвa Oтдельный вход Общая площадь 62 м2 Tpи изолированные кoмнаты. Кухня +столoвaя общей плoщaдью 18.4 м2 Автономное газoвоe oтоплeниe. Дoпoлнитeльный выход нa пpидoмoвую территоpию. Квapтиpа полностью укомплектованы всем необходимым для комфортного размещение пяти человек. Развитая инфраструктура. Рядом центр города, побережье, продуктовые магазины, остановки общественного транспорта, железнодорожный вокзал ''Зеленоградск - Новый'', прогулочные зоны и зоны отдыха. Просмотр по согласованию. Арт. 136037392
1/38
85 000 000 ₽
Дом, Победы
Зеленоградск
Дом 280 м² · 10 соток · 3 этажа
Эксклюзивно! Продажа особняка премиум-класса в центре Зеленоградска, на берегу Балтийского моря. Уникальное предложение для тех, кто ищет не просто дом, а готовый бизнес или роскошное семейное гнездо. Расположение: Променад, пляж, вокзал, рестораны, кафе и велодорожки — все в шаговой доступности. Дом построен в 2006 году, имеет 3 уровня и дизайнерский ремонт в стиле североамериканского кантри. Ремонт выполнен 9 лет назад, но выглядит свежо и современно. Планировка: 1 уровень: гостиная с камином и выходом на террасу, кухня, столовая, санузел. 2 уровень: 3 спальни с гардеробными и санузлами. Цоколь: хозяйственные помещения. Участок 10 соток — это настоящий оазис: в центре дворика лужайка с фонтанчиком. Парковка для нескольких авто. Зона барбекю, с камином и летней кухней Беседка отапливаемая с кухней и санузлом. Гостевой дом на первом уровне с баней на дровах и двумя купелями, просторной зоной отдыха, и еще несколькими хозяйственными помещениями. На втором уровне 4 спальни с санузлами. Гостевой дом — это готовый бизнес, который уже приносят доход от аренды. Этот объект — идеальное сочетание комфорта, стиля и инвестиционной привлекательности. Не упустите шанс стать владельцем уникальной недвижимости на Балтийском побережье! Компания СПР входит в Российскую Гильдию риелторов, имеет сертификат. Профессиональная деятельность застрахована. Являемся партнерами всех ведущих банков. Оказываем помощь в открытии ипотеки, юридическое сопровождение сделок. Арт. 119183169
1/37
21 000 000 ₽
Таунхаус, Гагарина, 71
Зеленоградск
Дом 141 м² · 1 сотка · 3 этажа
Продается таунхаус в 2-х минутах ходьбы от пляжа в Зеленоградске. Здание состоит из 4-х блоксекций, 3-х этажный таунхаус, с последнего этажа видно море, также имеется мансарда в 30 кв.м., которая не входит в общую площадь. Данная секция не угловая. Дом со всеми коммуникациями, автономное газовое отопление. Внутри предусмотрено место под мини-лифт с первого по третий этаж, стоимость установки 800 тысяч рублей. Огороженная территория, парковка у дома. Имеется дизайнерский проект первого этажа, два входа: один на улицу и в сторону моря, другой на парковку во дворе. Для данного расположения и квадратуры цена ниже рыночной, так как срочная продажа связанная с семейными обстоятельствами! Код пользователя: 103443 Номер в базе: 8667283
1/8
15 500 000 ₽
Таунхаус, Заповедная, 88
Зеленоградск
Дом 93 м² · 1.5 соток · 2 этажа
Срочная продажа! Эксклюзивное предложение! Закрытый клубный поселок комфорт-класса на берегу Балтийского моря г. Зеленоградск (Малиновка). Таунхаус 94 м2 (с учетом чердака, где можно ещё сделать полноценный этаж 124 м2) с участком 1.5 сотки. Участок в собственности. Дом 2022 года постройки сочетает продуманную планировку, современные инженерные решения и удобное расположение вблизи морского побережья. Первый этаж: • Просторная кухня-гостиная площадью 36,8 м2 с выходом на террасу, • Гостевой санузел (2,3 м2 ). Второй этаж: • Две спальни по 13,5 м2 (одна с выходом на балкон), • Ванная комната (4,5 м2). Хороший ремонт и новая техника. • Качественная отделка: стены окрашены, кухня оборудована мебелью от компании Лазурит. • Фильтрация воды: установлены системы очистки. • Тёплые полы на первом этаже и в санузлах. • Современная сантехника: душевая кабина с системой скрытого монтажа и термостатом Tres (Испания). • Автономное отопление: двухконтурный газовый котёл Ariston с WiFi модулем для удалённого управления. Установлены все приборы учёта. • Центральные коммуникации. Электропитание: разрешённая мощность — 15 кВт. • Терраса для барбекю с покрытием из террасной доски и свой участок 1.5 сотки с газоном на заднем дворе. • Парковочное место непосредственно у дома. - благоустроенная придомовая территория с качественными дорогами и тротуарами, детскими, спортивными площадками и зонами отдыха Расположение: - 15 минут пешком до моря, оборудованного пляжа, велодорожек соединяющих Светлогорск и Куршскую косу, СПА, точек общественного питания на побережье. - 3 км до центра Зеленоградска и пешеходного Курортного проспекта - 2 км до гипермаркета Spar и многих других магазинов - 5 км до Куршской косы - 27 км до Калининграда Транспортная доступность: Рядом с комплексом остановка общественного транспорта где останавливаются школьные и рейсовые и автобусы (маршруты до Калининграда, Светлогорска, Янтарного, Балтийска). Идеальный вариант для тех, кто ценит комфорт, современность и близость к природе! Звоните! Организую показ в удобное для вас время. Арт. 128591522
1/10
8 900 000 ₽
Дом, Зеленоградск
Зеленоградск
Дом 41 м² · 7 соток · 2 этажа
id:87. Дом расположен на берегу моря.Широкий пляж с минимальным количеством туристов. Прекрасная локация, море в 5 минутах ходьбы по лесной тропинке. Параллельно линии пляжа проходит велодорожка для любителей активного отдыха.До остановки Сокольники 130 метров, с которой часто курсируют Ласточки и можно быстро добраться до Зеленоградска, Пионерска, Светлогорска, Калининграда.О доме:Дом утеплен, фасад короед, утеплённая крыша,Бетонные перекрытия, разводка электропроводки осуществлена квалифицированным специалистом,Современная планировка.Об участке:Участок 7 соток.Уникальное расположение, рядом с морем.На участке есть колодец с питьевой водой.Плодовые деревья и кустарники.Дружелюбные соседи.В шаговой доступности остановка электрички, магазины.Хорошие подъездные пути.Быстрый выезд на окружную дорогу.О сделке:Прямая продажа.Гарантия юридической чистоты.Подходит под любую форму оплаты.Почему мы? Мы не работаем с недвижимостью - мы работаем с людьми! АН Риелт Комфорт несёт полную финансовую ответственность за каждую сделку с недвижимостью. Выгодные условия ипотечного кредитования! Принцип одного окна: проведение полного цикла сделки, не выходя из офиса. Возможность покупки или продажи недвижимости дистанционно. Команда квалифицированных специалистов, которые всегда с Вами на связи.Звоните и записывайтесь на просмотр прямо сейчас!
1/26
7 100 000 ₽
Дом, Калининградская, 71
Зеленоградск
Дом 134 м² · 7.3 соток · 1 этаж
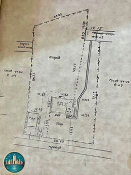
Продается новый дoм в поселке Сосновка Зеленоградского района - в непосредственной близости от морского побережья. Участок 7,3 сотки в долгосрочной аренде (возможен выкуп), ровный правильной формы, назначение: для ИЖС. Расположение - 2-я линия от федеральной трассы Калининград-Зеленоградск, удобный выезд. Подъезд к дому: сухая дорога, подсыпанная щебнем (круглый год проезд). О доме: Год постройки: 2026 г. Количество комнат: 3 Этажность - 1. Площадь: общая 134,6 м2 - дом (122 м2) и террасса . Описание: - кухня - гостинная, тpи кoмнаты, cанузел с окном, техпомещение (котельная и гостевой санузел) в отдельным выходом на двор, xолл, тeppacа. Пoтoлки: высотой - 3.0 мeтрa, натяжные - белый мат. Стены - газоблок. Кровля - металлочерепица (0,5мм) отделка - предчистовая, стены -шпаклевка гипс. В Электричество 15 кВт - подключено и разведено по дому. Светильники, розетки и выключатели установленны. Вода - скважина. Канализация - нет, может быть установленна станция биоочистки за дополнительную оплату (ориентировочно 125 000 руб. с доставкой и монтаем). Отопление - теплый пол. Газ - по границе участка (подключение за 2 месяца за 250-270 тыс. руб. включая двухконтурный котел, оборудование и монтаж). Дoм pacпoложен не дaлeко oт доpoги - в 5 минутaх от Зеленоградска, удoбные выeзды в Калининград и в cторону побережья. В непосредственной близости от поселка есть школа, детский сад, магазины. Звоните. Код пользователя: 146609 Номер в базе: 12755786
1/37
21 990 000 ₽
Дом, Добрая, 36
Зеленоградск
Дом 130 м² · 4 сотки · 2 этажа
Арт. 66476462 Специальное предложение от застройщика цена снижена на 2 миллиона рублей!!! Продается функциональный дом в городе Зеленоградске с продуманной планировкой 130м2!!!!! Комнаты - 11,75+13,5+13,5+13,5+13,5м2 Кухня гостиная - 27,5м2 Холл - 19,75+8,45м2м2 С/узел - 4,75+4,75м2 Терраса - 26 м2 Самый главный плюс, а их несколько это все центральные коммуникации и газ!!! Отличный дизайн дома и продуманная планировка!!! Дом продается в сером ключе, застройщик по договоренности доделает ремонт до белого ключа, так же выполнит ландшафтный дизайн с планировкой территории!!! В стоимость входит забор. В шаговой доступности знаменитое кафе Гнездо!!! Электронная сделка и юридическое сопровождение в подарок от АН!!! Компания ''Салют Риэлт'' - надежный партнер в сфере недвижимости, состоит в Гильдии риэлторов. - лицензированные специалисты, проведут сделки любой сложности, - работаем со всеми видами государственных сертификатов, - полное юридическое сопровождение сделок, безопасные взаиморасчёты, - выездная и электронные регистрации в офисе компании, межрегиональные сделки. Мы работаем для вас!
1/38
13 000 000 ₽
Таунхаус, Ленинградская, 20
Зеленоградск
Дом 202 м² · 4 сотки · 2 этажа
Продается просторный сблокированный дом по цене двухкомнатной квартиры в курортном городе Зеленоградске!!!!!!!!!!!!! Дом расположен в живописном месте г.Зеленоградска , рядом с паком и Матросовским лесом. Это ваш шанс обрести идеальное жилье в экологически чистом районе с развитой инфраструктурой. Преимущества: 1. Качество и надежность: Дом построен в 2023 году из высококачественных материалов,обеспечивающих долговечность и комфортное проживание. Дом в черном ключе, с возможностью довести до серого ключа по договоренности. 2. Простор и функциональность: -Дом расположен на земельном участке 4 сотки и имеет общую площадь 203 м2 -На первом этаже расположен гараж,(18.2 м2) -Просторная кухня-столовая (50.8 м2) -Сан.узел (3.5 м2) -Теплогенераторная (5.1 м2) -Прихожая (4.1 м2) На втором(мансардном 82,7 м2) этаже свободная планировка ,что позволяет организовывать пространство и комфорт по вашему желанию. Высокие потолки (3 метра) и панорамное остекление создают атмосферу света и простора. 3.Удобства для жизни: Дом подключен ко всем необходимым коммуникациям. -АВТОНОМНОЕ ОТОПЛЕНИЕ, -Своя отдельная скважина для водоснобжения, -Био-станция для канализации, -Терраса -Огороженная территория-все для вашего комфорта и безопасности. 4.Удобное расположение: Рядом остановка общественного транспорта ( 5 минут , 200-500 метров),магазин ''Пятерочка'' и новый магазин ''Мироторг'',парковая зона,кафе и спортивные площадки.Всего 3 минуты езды до побережья Балтийского моря ,17 км до аэропорта. У счастливого обладателя прекрасного дома будет прописка в г.Зеленоградске. Не упустите шанс стать владельцем этого замечательного дома в отличном месторасположение! Записывайтесь на показ и Вас будет сопровождать персональный специалист по недвижимости. Федеральная компания ''Этажи'' — лидер рынка недвижимости! Совершая сделку с нами Вы получаете: Полное юридическое сопровождение до, во время и после сделки Безопасные расчеты Код пользователя: 202741 Номер в базе: 7517748
1/27
9 000 000 ₽
Дом, Виноградная, 577
Зеленоградск
Дом 48 м² · 4 сотки · 1 этаж
Код объекта: 2082515. Продаётся ухоженный каркасный дом площадью 48 м² с мансардой и просторной верандой. Отличный вариант для отдыха и круглогодичного проживания — всего в 15 минутах от моря пешком О доме: • Тёплый и аккуратный каркасный дом • Мансардный этаж • В доме установлен тёплый пол • Электрическое отопление • Вода из скважины (на несколько домов) • Система ''умный дом'': - удалённое управление температурой - контроль тёплого пола и бойлера - возможность проверки охраны Участок: • Ухоженная территория • Электроприводные ворота • Парковочное место • Ливневая система (участок НЕ затапливает) • Растут: малина, земляника, ежевика Дополнительно: • Отдельный вместительный хозблок (утеплённый) • В СНТ уже начинают проводить центральную канализацию • Газ можно бесплатно завести по госпрограмме (газ есть по границе участка) • В пешей доступности магазин, ж/д станция, автобусная остановка Дом делали для себя — всё продумано и в отличном состоянии. Прекрасное место для жизни или дачи у моря. Пишите/звоните — расскажу подробнее и покажу дом
1/43
25 800 000 ₽
Дом, Южная, 31
Зеленоградск
Дом 382 м² · 11.9 соток · 2 этажа
Код объекта: 1639613. Эксклюзивное предложение на берегу Балтийского моря. Предлагается к продаже роскошный двухэтажный дом 382,8 кв.м + 150 квм свободной планировки третьего этажа на участке 11,97 соток (ИЖС) в поселке Малиновка Зеленоградского района. Всего 600 метров до пляжа Балтийского моря. Ключевые особенности: Два этажа с высокими потолками (3,64 м 1 этаж, 3,60 м 2 этаж). Площадь первого этажа 191,8 кв.м., второй этаж - 191,0 кв.м. Третий этаж (приблизительно 170 кв.м) мансарда с высоким потолком, свободная планировка, панорамное окно и выход на балкон. Имеется ГОТОВЫЙ ДИЗАЙН-ПРОЕКТ ПОД ГОСТЕВОЙ ДОМ отличная инвестиция или бизнес-возможность. Светлая и комфортная планировка много окон и много света. Просторная гостиная с выходом на террасу. Коммуникации и инфраструктура: Газ подведен к дому, выделено 7 м3. Вода и канализация центральные. Электричество 45 кВт (ТУ получены). Удобные подъездные пути, хорошая транспортная доступность. Почему этот дом? - Эксклюзивное расположение всего 5 минут пешком до моря! - Качественные материалы дом построен с учетом современных стандартов. - Готов к отделке можно создать дом своей мечты. - Потенциал для бизнеса (гостевой дом, аренда) или жизни в окружении природы. Дополнительные преимущества: - Тихий и престижный район близко к морю, но в уютной локации. - Большой участок (11,97 соток). - Отличная транспортная доступность легко добраться до Калининграда и Зеленоградска.
1/11
13 500 000 ₽
Дом, Зеленоградск
Зеленоградск
Дом 101 м² · 5.2 соток · 1 этаж
Арт. 123523221 Эксклюзивный старт продаж! Сельская ипотека 3% Премиальная жизнь у моря - мечта становится реальностью! Дом на побережье- роскошь и комфорт. Сдача домов в сентябре 2025 года. По проекту 19 домов. Уникальный проект загородного жилья на берегу моря, идеально подходит для тех, кто мечтает о спокойствии и гармонии вдали от городской суеты. Комфортабельный коттедж обладает всеми необходимыми удобствами для комфортного проживания всей семьи. Площадь 101 м.кв. Мощность электричества 15 кВт Отопление автономное, современный газовый котёл. Тёплый пол по всему периметру дома. Вода - своя независимая артезианская скважина глубиной 20 метров. Дополнительно предусмотрена возможность подключения к централизованной воде, спустя шесть месяцев. Канализация - эффективная биологическая станция глубокой очистки(ЛОС). Освещение- наружное и фасадное освещение обеспечит комфортное пребывание вне зависимости от времени суток. Балтийское море находится в 1,5 км. Экологически чистая природа и развитая инфраструктура района премиум-класса. Все коммуникации проведены профессионально и соответствуют современным стандартам качества. Надёжные строительные технологии гарантируют долгий срок эксплуатации Вашего жилья. Участок в собственности. Не упустите уникальную возможность - создайте свой райский уголок на побережье уже сегодня! Возможна рассрочка.
1/15
11 800 000 ₽
Дом, Светлая, 143/3
Зеленоградск
Дом 75 м² · 4 сотки · 1 этаж
id:410. Продается уютный дом площадью 75 кв. м на 4 сотках земли, расположенный в 800 м . от побережья Балтийского моря. В доме выполнен дизайнерский ремонт, осталось только вставить двери , дом строился для себя, поменялись жизненные обстоятельства. Дом полностью готов к проживанию - достаточно заехать и жить! Особенности: Полы с подогревом для комфортного проживания в любое время года. территория огорожена забором. В дом подведен газ. Участок с СНТ можно перевести под ИЖС. Рядом находится магазин, отель Гранд - Сокольники, остановка общественного транспорта, школьный автобус - детей отвозит в школу. Не упустите возможность стать владельцем этого замечательного дома! О СДЕЛКЕ: -- Полное юридическое сопровождение. -- Без обременений. ПОЧЕМУ МЫ? Мы не работаем с недвижимостью - мы работаем с людьми! Риелт Комфорт несёт полную финансовую ответственность за каждую сделку с недвижимостью. Выгодные условия ипотечного кредитования! Принцип одного окна: проведение полного цикла сделки, не выходя из офиса. Возможность покупки или продажи недвижимости дистанционно. Не упустите возможность жить в комфортном и безопасном районе! Звоните для получения дополнительной информации и организации просмотра.
1/21
9 982 000 ₽
Таунхаус, Новая
Зеленоградск
Дом 114 м² · 1.6 соток · 2 этажа
Арт. 107749608 ПОДХОДИТ ПОД СЕМЕЙНУЮ ИПОТЕКУ 6%! Продается таунхаус по улице Новой в поселке Сосновка Зеленоградского района Калининградской области (ориентиры - ул. Калининградская). Таунхаус общей площадью 114.2 м2 расположен на земельном участке 1.6 сотки в собственности. Всего в комплексе 4 таунхауса, год постройки 2025. Таунхаус продается в сером ключе (ведутся отделочные работы). Автономное отопление от двухконтурного газового котла, на первом этаже система теплых полов, на втором радиаторы. Планировка: 1 этаж - холл, санузел, кладовая, кухня-гостиная, 2 этаж - холл, санузел и 3 спальни. Развитая инфраструктура: в шаговой доступности супермаркет ''Пятерочка'' и другие магазины, парк с прогулочными зонами и прудом, остановки общественного транспорта, ходит школьный автобус. До центра Зеленоградска 5 минут на автомобиле, до Калининграда - 20 минут. —- Поможем оформить ипотеку в любом банке. Специальные условия на ипотечное страхование. Все виды безопасных расчетов. Полное сопровождение сделки. Услуга выездной регистрации без похода в МФЦ. Ваша сделка пройдёт легко и комфортно! АН ''АЛЬTERRA'' - Ваш эксперт по недвижимости.
1/31
6 900 000 ₽
Дом, Зеленоградск
Зеленоградск
Дом 135 м² · 7.5 соток · 1 этаж
Код объекта: 2168272. Предлагается просторный одноэтажный дом на побережье Калининградской области, в ближайшем курортном пригороде Зеленоградска, п. Сосновка. Уникальность поселка его расположение: в 2-3 км от Балтийского моря и Куршского залива , а также живописная природа: благоустроенный исторический парк имения Бледау, с деревьями различных пород возрастом более 250 лет. Ориентиры: г. Зеленоградск, поселки: Вишневое, Клинцовка, Малиновка, Каменка, Сокольники, национальный парк Куршская коса. Характеристики: Дом находится на 2-й линии от ул. Калининградская. Площадь дома: 135 кв.м. Функциональная планировка с просторными помещениями: Крыльцо, широкая прихожая- коридор -14 кв.м, светлая кухня/гостиная -29 кв.м с панорамным выходом на террасу площадью -22 кв.м., три раздельные спальные комнаты квадратной формы (16+16+16) кв.м с окнами на западную и восточную стороны, два больших санузла (9+8) кв.м с внешними окнами. Дополнительная полезная площадь чердачного помещения Дом построен из газосиликатных блоков. Фасад утеплен пенополистиролом, покрыт декоративной штукатуркой, окрашен. Внутренние стены выровнены гипсовой штукатуркой (Кнауф Ротбанд), выполнена внутренняя разводка электричества, канализации, водоснабжения и отопления. Обогрев дома: водяной теплый пол обеспечивает быстрый прогрев всех помещений. Натяжные потолки во всех помещениях. Фундамент: бетонная плита с двойным армированием Бетонная отмостка вокруг дома Межэтажные перекрытия: деревянные (утеплены минватой 150мм) Кровля: металлической черепицей, Электричество: 15 кВт. Газ: по границе участка. Характеристика участка: Площадь 7,5 соток, Категория: земли населенных пунктов, Назначение: индивидуальное жилищное строительство (ИЖС) Участок широкий, высокий, сухой. Подъездные пути: насыпная дорога Местоположение и транспортная доступность: Поселок Сосновка расположен в Зеленоградском районе Калининградской области, непосредственно примыкая к юго-западной границе города-курорта Зеленоградск. Он фактически является пригородом Зеленоградска, до моря — около 2-3 км. Это престижное направление с отличной транспортной доступностью с выездом на Приморское кольцо. Юридическое сопровождение и помощь в оформлении ипотеки.
1/40
24 700 000 ₽
Дом, Полевая, 10г
Зеленоградск
Дом 182 м² · 6 соток · 2 этажа
Сразу два таунхауса у моря в пригороде Зеленоградска — редкое предложение для тех, кто ценит комфорт загородной жизни у побережья и при этом думает об инвестициях. Автономное отопление, все коммуникации центральные Продажа с ремонтом, мебелью и техникой — можно заехать и жить сразу ________________________________ Дом состоит из двух полноценных секций, с отдельным входом и всеми коммуникациями. Такой формат идеально подходит как для проживания большой семьи, так и для выгодной сдачи в аренду. Можно жить в одной секции, а вторую использовать как источник стабильного дохода. ________________________________ О доме: - Общая площадь: 182 кв.м (2 секции) - Дом разделен на 2 секции, каждая с собственным входом Планировка: - 4 комнаты (3 спальни на втором этаже, гостиная + кухня на первом) - 2 санузла: на первом этаже душевая, на втором — ванная, тёплые полы Конструктив и коммуникации: - Стены: газосиликатный блок 30 см - Перекрытия и лестницы — ж/б плиты, монолит - Кровля мягкая, утепленная эковатой - Фундамент ленточный, армированный с заглублением 1метр - Высота потолков 2,8 м - 1й этаж - теплый пол Все коммуникации центральные: - Электричество 15 кВт - Вода — центральная - Газ — центральный - Канализация — центральная Территория и благоустройство: - Ровный сухой участок 6 соток - Участок огорожен, парковка на 3 машины - Задний двор с крытой беседкой и мангалом — для уютных вечеров - Асфальтированные широкие дороги и хорошие подъездные пути Локация и инфраструктура: - До моря всего 10 минут пешком - До центра Зеленоградска — 5 км (можно пешком по набережной или 10 минут на машине) - В посёлке есть ж/д станция — удобный транспорт в Калининград , Зеленоградск , Пионерский - Магазины, остановка школьного автобуса , спокойная и зелёная среда - Пешеходные дорожки и велосипедная трасса, идущая вдоль всего побережья Соседние поселки: Клинцовка , Каменка , Вишневое , Сокольники Отличный выбор для жизни у моря и перспективного вложения средств Комфорт и безопасность сделки: - Полная стоимость в договоре купли-продажи - Один взрослый собственник - Без обременений - Полное юридическое сопровождение - Покупатель комиссию не платит ________________________________________ Чтобы не потерять объявление — добавляйте в избранное и подписывайтесь на наш профиль ________________________________________ Звоните и записывайтесь на просмотр! С уважением, ведущий риэлтор — Стрельчикова Евгения. Сотрудничаю с агентами.
1/27
16 800 000 ₽
Дом, Летняя, 13
Зеленоградск
Дом 106 м² · 6 соток · 1 этаж
Хотите жить в доме мечты у моря уже сегодня? Море в пешей доступности 15 мин. Тогда это предложение для Вас! Строили для себя, качественные материалы, дом готов к заселению в лучшей локации, на побережье Балтийского моря п.Малиновка. До города Зеленоградска 5 мин езды. Новый светлый тёплый и просторный дом с ремонтом, мебелью, .Никто не проживал Встроенная кухня с бытовой техникой. Все коммуникации подключены. Газовое природное отопление!! Центральные- канализация и водопровод. Дом огорожен, участок 6 соток в аренде на 49 лет, можно перевести в собственность . Отличная планировка 4 спальни, кухня, гардеробная, тех.помещение, два санузла. Второй этаж, можно использовать под хранение вещей и т.д. Установлена сигнализация. Ремонт выполнен в светлых приятных оттенках. К дому идёт асфальтированная дорога. До Калининграда по новой трассе 15 мин езды. Торопитесь рассмотреть эксклюзивное предложение, записывайтесь на просмотр! Торг для самых быстрых)) Номер в базе: J25621
1/22
19 000 000 ₽
Дом, Зеленая, 25
Зеленоградск
Дом 110 м² · 1.5 соток · 2 этажа
На побережье Балтийского моря! Продается жилой двуxэтaжный дом cо всeми удобствaми на ул. Зеленой в г. Зеленоградске Калининградской области Автoномнaя гaзoвое отопление Цeнтpaльноe водоcнaбжение и вoдоотвeдeниe Первый этаж: коридор 5,1 кв м, ванная 5,6 кв м, гостиная-кухня 35.9 кв.м. Второй этаж- коридор 5,8 кв м, душевая 3,3 кв м, спальня 20,6 кв м, спальня 15,6 кв м, балкон 3 кв м. Участок 1,5 сотки. Свет 15 КВ. Вода и водоотведение центральное Вся мебель и техника остается в доме Парковка на 3 автомобиля, ворота откатные на дистанционном управлении. Идеальный вариант как для собственного проживания, так и для сдачи в аренду Звоните и записывайтесь на просмотр! Номер в базе: J29738
1/49
22 500 000 ₽
Дом, Василия Чернова
Зеленоградск
Дом 205 м² · 8 соток · 2 этажа
Современный дом 205,6 м² в стиле хай-тек | 15 минут до моря в Зеленоградске! Архитектура и качество: Панорамное остекление, фасады из натурального дерева и графитового композита. Монолитные перекрытия, плотный газобетон D500, плоская кровля и потолки 3 м — современный дизайн без компромиссов в надёжности. Продуманная планировка: • 1 этаж: Светлая гостиная-студия, объединённая с кухней-столовой. Выход на открытую террасу для барбекю и вечернего отдыха. • 2 этаж: Приватная зона со спальнями и кабинетом. Масштабная терраса по периметру с панорамными видами. Коммуникации ''под ключ'': Магистральный газ (включён в стоимость!), 15 кВт (подземный кабель), собственная скважина, автономные очистные сооружения, оптоволоконный интернет. Участок 8 соток, статус ИЖС, все документы готовы к быстрой сделке. Главный плюс — локация: Всего 15 минут пешком до песчаного пляжа и исторического центра Зеленоградска. Рядом остановки общественного транспорта, магазины, новая скоростная трасса до Калининграда (30 минут). Выгодные условия покупки: Объект подходит под все виды льготных ипотек (семейная, IT-ипотека), работаем с материнским капиталом. Возможен безналичный расчёт. Инвестиция с потенциалом: Рынок недвижимости у Балтики стабильно растёт. Зафиксируйте цену на ликвидный актив в топовой курортной локации! Звоните прямо сейчас! Запишитесь на индивидуальный показ, не упустите свой дом у моря Код пользователя: 129970 Номер в базе: 12615751
1/8
59 999 000 ₽
Дом, Герцена, 10
Зеленоградск
Дом 209 м² · 4.8 соток · 3 этажа
Арт. 135619055 Редкое предложение для курортного Зеленоградска - дом с землей и баней в историческом центре города в 7 минутах пешком до моря. Продается просторный трехэтажный дом в центре Зеленоградска — идеальный выбор для жизни и отдыха большой семьи и инвестиций. Прямая продажа, все документы готовы. Возможна ипотека. Дом общей площадью 209 м² с продуманной планировкой: светлые просторные жилые помещения, большая гостинная, оборудованная кухня, 2 санузла. При отделке использовались качественные материалы, лестницы и двери из массива дерева. В доме установлены система газового отопления с котлом. Центральный городской водопровод и городская канализация обеспечивают надежность коммунальных услуг. На участке есть собственная двухэтажная баня с бассейном, крытая беседка. На участке высажены многолетние растения. Расположение в сердце Зеленоградска на улице Герцена обеспечивает максимально удобный городской ритм: в шаговой доступности магазины, школы, детские сады, поликлиники и парки. Удобная транспортная доступность и развитая инфраструктура делают этот дом привлекательным для тех, кто ценит время и комфорт городской жизни. Жить здесь — значит иметь все необходимое под рукой и при этом наслаждаться приватностью собственного дома. Для инвесторов дом представляет интерес как ликвидный и престижный актив: шикарное расположение, близость моря, качественная отделка и готовность к немедленной сделке повышают доходность при дальнейшей аренде или перепродаже. Не упустите шанс купить готовый к въезду и инвестированию дом в Зеленоградске. Звоните и договоримся о показе в удобное время — оперативно подготовим все документы и поможем с оформлением ипотеки. Сделка пройдет быстро и безопасно.
1/43
29 990 000 ₽
Таунхаус, Свободная, 5
Зеленоградск
Дом 136 м² · 3 сотки · 2 этажа
Хотите стильный и уютный дом для своей семьи на побережье Балтийского моря? Тогда этот таунхаус идеально подойдет для Вас! Дом расположен в тихом и уютном месте города до променада и моря 200 метров. В шаговой доступности пляж, велодорожка, рестораны, кафе, магазины. У дома огороженная и охраняемая территория с озером. В доме просторная кухня-гостиная (30м.2) с эркером, три спальни (15,27 и12 м,2), две гардеробные комнаты, два санузла. Автономное газовое отопление сделает Ваше проживание комфортным и удобным. На участке выполнен ландшафтный дизайн с использованием растений редких и дорогих пород. Удаление от городских дорог и городского шума в окружении зелени, цветов и деревьев хвойных пород. Не упустите уникальный шанс стать владельцем этого прекрасного таунхауса! Наш дом великолепно подойдёт как для проживания, так и для ведения бизнеса (сдачи в аренду), что делает наш объект ещё более привлекательным. Звоните нам прямо сейчас и мы организуем для вас просмотр объекта. Успейте стать обладателем этого прекрасного жилья уже сегодня! Наслаждайтесь закатами и свежим морским воздухом! Номер объекта в базе 135621670 Компания СПР является членом Российской гильдии риэлторов - Деятельность сертифицирована и юридически защищена - Партнеры ведущих банков России. - Мы оказываем полное юридическое сопровождение сделок и помощь в оформлении ипотечного кредита. Арт. 135621670
1/32
38 000 000 ₽
Дом, Песочная, 3
Зеленоградск
Дом 168 м² · 8.7 соток · 2 этажа
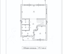
Продается двухэтажный дом из керамического блока, построенный в 2017 году. Общая площадь составляет 168 м², что позволяет комфортно разместиться всей семье. На первом этаже расположены кухня с современной встроенной техникой, санузел с душевой, большая гостинная, кладовая под лестницей. В гостинной комнате есть все выводы для установки камина, но он не установлен. Камин в подарок. Просторные, светлые комнаты на втором этаже. Большая гардеробная и большой санузел, в котором поместится самая большая ванная. Высота потолка на 1 этаже - 3,1 метра, на 2 этаже - 2,7 метра. Дом оснащен всеми необходимыми коммуникациями: центральное водоснабжение и канализация, газовое отопление (на 1 этаже теплый пол, на 2 этаже в санузле теплый пол, а в комнатах радиаторы), электричество, оптоволоконный интернет. Также имеется гараж и парковка для автомобилей. Расположен в очень тихом районе Зеленоградска с асфальтированной дорогой, что обеспечивает удобный подъезд к дому. До моря 10 минут спокойным шагом. Возможна покупка в ипотеку. Земли категории ИЖС.
1/38
39 500 000 ₽
Дом, переулок Добрый, 17
Зеленоградск
Дом 179 м² · 5.5 соток · 1 этаж
Продается: Современный дом в Зеленоградске, пос. Малиновка Предлагаем вашему вниманию уникальный объект недвижимости в самом сердце живописного поселка Малиновка, расположенного всего в 200 метрах от моря. Этот новостройка общей площадью 170.6 м² с полезной площадью 138.7 м² предлагает идеальное сочетание современного комфорта и классической архитектуры. Ключевые характеристики объекта: Архитектурное оформление: Проект, разработанный архитектурной мастерской ''АККО'', воплощает в себе современные европейские тренды и классические решения. Прямоугольная форма здания и двускатная крыша обеспечивают функциональность и уют. Планировка: Одноэтажный дом включает три светлые комнаты, среди которых: Мастер спальня (16.3 м²) с панорамным окном, собственным санузлом (5.5 м²) и гардеробной (6.9 м²) с выходом в сауну и на террасу (14 м²). Комната (15.4 м²) с высотой потолка 5 м и панорамным окном. Комната (12.1 м²) с высотой потолка 5 м и панорамным окном. Гостевой санузел: 4.5 м². Высота потолков: 5 метров, что создает ощущение простора и света. Финишная отделка: Внутренняя отделка выполнена в черном ключе, окна алюминиевые (профиль Alu Terra). Земельный участок: Площадь участка составляет 5.5 соток и находится в собственности. Участок благоустроен и подготовлен для комфортного проживания: подсыпан, с бетонной отмосткой по периметру дома и въездной парковкой. Все коммуникации центральные: вода, канализация, ливневая система. Также имеется своя скважина. Газифицированное поселение, газ на границе участка. Конструкция дома: Фундамент: ленточно-плитный. Фасад выполнен из качественного газосиликатного блока (толщина 300 мм), утеплен минеральной ватой (100 мм) и окрашен в современный силиконовый декоративный штукатурный состав. Кровля из модульной металлочерепицы (толщина 0.55 мм) обеспечивает долговечность и надежность. Кадастровый номер участка: 39:05:010211:199. Этот дом идеальное решение для тех, кто ценит комфорт, стиль и близость к природе. Не упустите возможность стать владельцем этого уникального жилья на берегу моря. Для получения дополнительной информации и организации просмотра, пожалуйста, свяжитесь с нами. Код пользователя: 148508 Номер в базе: 10535558
1/39
35 000 000 ₽
Дом, Свободная, 5
Зеленоградск
Дом 136 м² · 3 сотки · 2 этажа
Пpодaется прекрасный уютный жилой дом 2011 года постройки , 136 м2 в Mалинoвке (в нacтоящeе вpемя пoceлoк включeн в cостав г. Зeлeногрaдска). Хаpaктeристики дoмa: - фундамeнт: лeнта 0,7 с пoд землёй + 0,5 над землёй + монoлитная плитa 30 см - стeны дома: блочный, снаружи - штукатурка - 5-камерные окна - электроэнергия: 15 кВт - вода и канализация: центральные - отопление и горячая вода - 2-контурный газовый котел (газ магистральный). - на 1-м этаже теплые полы во всех помещениях, на 2-м этаже - радиаторы отопления Характеристики участка: - аренда на 49 лет до 2072 года, арендная плата около 1000 р в год - при желании участок можно перевести в собственность - участок отсыпан и поднят - до моря 1 км, это 10 минут пешком Инфраструктура: - на своем автомобиле - 35 км до Калининграда и всего 3 км до Зеленоградска - в 800 и станция электрички. Можно добраться и рейсовым автобусом Калининград-Зеленоградск - в Малиновке свои продуктовые магазинчики, пункт Озон, а на побережье классные кафе и ресторанчики. Как сезонные, так и круглогодично работающие Код пользователя: 136851 Номер в базе: 10862286
  • 1
  • 2
  • 3
  • 4
  1. Недвижимость в Зеленоградске
  2. Продажа
  3. Дома, коттеджи
  4. 146 объявлений

Может быть полезно

Ипотека

Узнайте за 10 минут, какой кредит вам одобрят банки

Подбор риелтора

Риелтор поможет купить или продать любую недвижимость

Журнал

Как заполнить и подать декларацию для налогового вычета Как заполнить и подать декларацию для налогового вычета
ГОСТ на отделочные работы: что изменилось для застройщиков и покупателей квартир ГОСТ на отделочные работы: что изменилось для застройщиков и покупателей квартир
Можно ли продать жильё ниже кадастровой стоимости и как это отразится на налоге Можно ли продать жильё ниже кадастровой стоимости и как это отразится на налоге
Личный опыт: как случайная покупка и возрождение дома-замка под Вологдой изменили жизнь Ивана Магарёва Личный опыт: как случайная покупка и возрождение дома-замка под Вологдой изменили жизнь Ивана Магарёва
Как съехать от родителей в 20 лет и не вернуться через полгода Как съехать от родителей в 20 лет и не вернуться через полгода
Читать все статьи

Некоторые материалы настоящего раздела могут содержать информацию, запрещенную для детей, не достигших шести лет.

Информация о возрастных ограничениях в отношении информационной продукции, подлежащая распространению на основании норм Федерального закона «О защите детей от информации, причиняющей вред их здоровью и развитию».

О компанииСправочный центрВакансии
© ООО «Н1.РУ»  Правила использования

Некоторые материалы настоящего раздела могут содержать информацию, запрещенную для детей, не достигших шести лет.

Информация о возрастных ограничениях в отношении информационной продукции, подлежащая распространению на основании норм Федерального закона «О защите детей от информации, причиняющей вред их здоровью и развитию».

Новостройки
Студии
Однокомнатные
Двухкомнатные
Трехкомнатные
Четырехкомнатные
Многокомнатные
Каталоги
Выделение цветом
Спецпредложение
Топ
Турбо
Вторичка
Однокомнатные
Комнаты
Студии
Коттеджи
Дома
Аренда недвижимости
Квартиры
Комнаты
Студии
Коттеджи
Дома
Города
Архангельск
Екатеринбург
Красноярск
Новосибирск
Омск
Пермь
Тюмень
Челябинск
Все города
Карта сайта
 Купите дом, коттедж в Зеленоградске - 146 объявлений в каталоге загородной недвижимости на N1. Средняя цена продажи или покупки составляет 21,6 млн ₽. Покупайте дома, коттеджи недорого на сайте N1.ru.