Дом, переулок пр-д-й Звездный, 42 Показать на карте
Заозерье
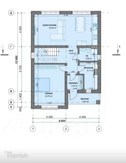
Продается современный дом площадью 95 кв.м на участке 7 соток в поселке Заозерье.Объект расположен на возвышенности, что обеспечивает сухой и ровный участок правильной формы, готовый к ландшафтному обустройству.Дом построен из газосиликатного блока с утеплением фасада и перекрытий, что гарантирует энергоэффективность в любое время года. Ключевая особенность — система теплого пола по всей площади, создающая равномерный и комфортный микроклимат. Планировка включает три изолированные спальни и просторную кухню-гостиную, что оптимально для постоянного проживания семьи. Все внутренние коммуникации полностью разведены, установлен электрический котел и бойлер для бесперебойного горячего водоснабжения. Вопрос с электроснабжением решен: технические условия на 15 кВт оплачены, ожидается монтаж счетчика. Для автономной канализации смонтирована производительная биостанция, рассчитанная на 5-7 человек. Дом не требует вложений в черновую отделку и готов к заселению после выполнения финишных работ. Это предложение сочетает преимущества загородной жизни с современным уровнем инженерного оснащения. Рассматриваются предложения с оплатой наличными средствами. Код пользователя: 191299Номер в базе: 10592029
90 м2
1 этаж
Бетонные блоки
- Показать контакты
- Добавить в избранное
90 м2
1 этаж
Бетонные блоки
7 900 000
87 778 /м2
