4-к, Молодой гвардии, 34 корп. 3 Показать на карте
Ленинградский район
Калининград
Прямая продажа от застройщика! Готовность проекта - 100%. Ключи сразу после сделки! Впечатляющая квартира с предчистовой отделкой, потолками 3 м и панорамным видом на парк. ЭКО квартал ''РусскаЯ ЕвропА'' — это современное пространство для жизни, состоящее из монолитно-кирпичных зданий переменной этажности. Застройщиком представлены разнообразные планировки квартир: от уютных студий до просторных четырехкомнатных квартир, включая двухуровневые решения и европланировки. Квартиры сдаются в предчистовой и чистовой отделке Особенности ЖК ''Адрес Счастья'' ЭКОквартала ''Русская Европа'': Проект комфорт-класса в престижном Ленинградском районе города, Ультрасовременные экологические инженерные решения в каждом доме и каждой квартире, Элегантное решение композиции фасадов от архитектурного бюро с мировым именем и две победы на международных архитектурных премиях URBAN AWARDS, Впервые в Калининграде lounge-зоны на крышах домов, Европейский подход к благоустройству: площадь с фонтанами, ландшафтный парк, детские и спортивные площадки, Панорамное остекление квартир поражают своими головокружительными видами на архитектуру комплекса и зеленые виды парков, Продуманная концепция инфраструктуры: Школа, детский сад и поликлиника на территории комплекса, уютные кафе и рестораны, супермаркет, фитнес-студия, службы сервиса, детский центр развития. Транспортная доступность: Удобный выезд на Московский проспект, улицу Гагарина и Большую Окружную, В пешей доступности Суздальский парк и городской парк ДЕВАУ Квартира с предчистовой отделкой Качественная предчистовая отделка позволит проявить творческий подход к созданию уникального дизайна квартиры, а все черновые работы, включая установку внутренних перегородок, разводку электричества и мокрых точек уже будут выполнены. Каждая квартира отличается особыми преимуществами и подготовлена к системе умный дом: - Панорамные окна от потолка до пола, - Собственная терраса, - Мастер спальня, - Гардеробная, - Баня в квартире (!) - Дополнительная, сверхнормативная шумо/гидроизоляция стен и перекрытий - Индивидуальная приточно-вытяжная вентиляция с фильтрацией и рекуперацией Официальный отдел продаж проекта ''Русская Европа'' предлагает своим клиентам специальные условия приобретения квартир в рамках программ ипотечного кредитования от банков-партнеров. Больше подробностей о квартирах жилого комплекса ''Адрес Счастья'' и уникальное предложение для вашего бюджета - по телефону отдела продаж! Звоните!
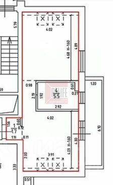
117 м2
10 / 14 этаж
Кирпич - монолит
- Показать контакты
- Добавить в избранное
117 м2
10 / 14 этаж
Кирпич - монолит
21 935 100
187 000 /м2
Новостройка,
дом сдан
дом сдан
