Дом, Ладушкин, 11 Показать на карте
Ладушкин
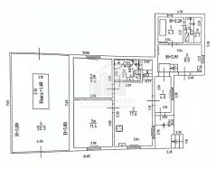
Продам ДОМ 145м2 в г. Ладушкин (Калининградская обл.) на ул. Береговой. Участок 8 соток. Всё в собственности.200м от Калининградского залива.Дом двухэтажный. Год постройки 2012. Центральный водопровод и канализация. Автономное газовое отопление. Электричество 15кВт.В доме 4 комнаты + кухня. Высота потолков 2.9м. На первом этаже большой зал (34м2) с выходом на террасу, кухня (12.3м2), просторная прихожая с лестницей, санузел, гардеробная (7м2). На втором этаже 3 спальни, 2-ой санузел, мастерская/кабинет.Дом очень тёплый. Установлены качественные стеклопакеты и радиаторы. Тёплый пол на весь первый уровень.Участок высокий, сухой, ухоженный, правильной формы. Огорожен. Хоз постройка для инвентаря (электричество подведено). На участке плодовые деревья и кустарники. Без обременений.Хорошие подъездные пути. До Калининграда 30мин на автомобиле. От дома до автобусной остановки 5мин пешком, маршрутка - каждые 30-40мин. Школьный автобус. До Калининграда регулярно ходит дизель-поезд. Рядом детский садик. Школа. Магазины. МФЦ. Парк. Есть все, что необходимо для комфортного проживания в тихом, экологически чистом месте.Подходит под все виды взаиморасчетов, в том числе с использованием ипотеки и материнского капитала. Торг возможен. Номер в базе: J15060
145 м2
2 этажа
- Показать контакты
- Добавить в избранное
145 м2
2 этажа
11 290 000
77 701 /м2
