Если цена в объявлении изменится, мы сразу сообщим вам об этом на электронную почту.
Нажимая «Подписаться», вы соглашаетесь с правилами.
продам дом, Пражская, 307 600 000 ₽
19 фев
Дата публикации объявления
Обн. сегодня
Дата обновления объявления
92 683 ₽/м²
Чистая продажа
Термин "Чистая продажа" означает, что в квартире никто не прописан или
есть куда выписаться и вывезти вещи. Это лучший вариант для покупателя.
Вероятность срыва сделки минимальна.
Этажей1
Площадь участка6 соток
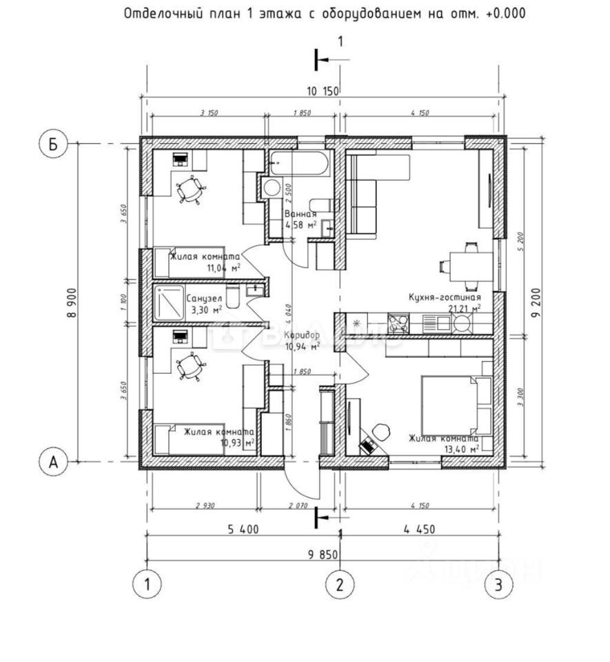
Общая площадь82 м2
ЭлектричествоЕсть
Газоснабжениецентральное
Код объекта: 1804187. Продается уютный 3-х комнатный дом площадью 82 кв.м. в новом эко-поселке в едином архитектурном стиле в п. Холмогоровка.
Подходит под СЕМЕЙНУЮ и СЕЛЬСКУЮ ипотеку, поможем с получением по льготным условиям. В цену включены все банковские комиссии, ипотечное и юридическое сопровождение.
Дом построен из качественных экоматериалов, установлены дорогие стеклопакеты, панорамные окна, ''теплый пол'', возможность использования мансарды.
Земельный участок 6 соток, ИЖС, стоимость участка ВКЛЮЧЕНА, газ, электричество.
• Дом включает 3 изолированные комнаты (13,4+11,1+10,9), большая кухня-гостиная (21,1) с панорамными окнами и выходом в зону барбекю, 2 санузла, коридор.
Код объекта: 1804187. Продается уютный 3-х комнатный дом площадью 82 кв.м. в новом эко-поселке в едином архитектурном стиле в п. Холмогоровка.
Подходит под СЕМЕЙНУЮ и СЕЛЬСКУЮ ипотеку, поможем с получением по льготным условиям. В цену включены все банковские комиссии, ипотечное и юридическое сопровождение.
Дом построен из качественных экоматериалов, установлены дорогие стеклопакеты, панорамные окна, ''теплый пол'', возможность использования мансарды.
Земельный участок 6 соток, ИЖС, стоимость участка ВКЛЮЧЕНА, газ, электричество.
• Дом включает 3 изолированные комнаты (13,4+11,1+10,9), большая кухня-гостиная (21,1) с панорамными окнами и выходом в зону барбекю, 2 санузла, коридор.
• Живописная местность, до Калининграда всего 3 минуты, до побережья Балтийского моря 25 минут (как Зеленоградск, так и Светлогорск), рядом остановка общественного транспорта. Поселок интенсивно развивается, строится супермаркет ''Спар'', площадью 8000 кв.м., фермерский рынок, заправочная станция, в 2027 году будет введена в эксплуатацию новая современная школа с детским садиком. Недалеко 2 школы, детский садик, фитнесс-центр, ''Пятерочка'', озеро с местом для пикника.
• Звоните, организуем показ в любое удобное для Вас время!
• За наличный расчет большие скидки, реальному покупателю торг.
Дарим 300 000 рублей на путешествие! Покупайте или продавайте недвижимость вместе с агентством ''Авеню-Риэлт Владис'' и получайте шанс отправиться в путешествие Вашей мечты! Направление путевки Вы можете определить самостоятельно. Победитель будет выбран случайным образом в конце декабря.