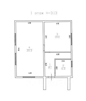
Вашему вниманию предлагается качественный, тёплый, и очень уютный новый дом 2024 года постройки со свободной планировкой в очень тихом месте в черте города. Жилой дом в статусе - ИЖС, участок в собственности - 6 соток, городская прописка ! Высокие потолки 3,13 м.
Дом находится в живописном месте, рядом озеро, пруд и лес. До остановки общественного транспорта 400 метров пешком. Рядом удобный заезд на окружную.
В доме на данный момент нет коммуникаций.
Стоимость подключения газа: 140 тыс
Стоимость подключения электричества: 200 тыс
Документы готовы к проведению сделки, дом и участок зарегистрированы, один собственник, без обременений.
Продажа ниже кадастровой стоимости !


































