Если цена в объявлении изменится, мы сразу сообщим вам об этом на электронную почту.
Нажимая «Подписаться», вы соглашаетесь с правилами.
продам дом, 3 Белорусского фронта, 357 800 000 ₽
27 янв
Дата публикации объявления
Обн. вчера
Дата обновления объявления
2
Количество просмотров (+ просмотры за сегодня)
43 333 ₽/м²
Чистая продажа
Термин "Чистая продажа" означает, что в квартире никто не прописан или
есть куда выписаться и вывезти вещи. Это лучший вариант для покупателя.
Вероятность срыва сделки минимальна.
Этажей2
Площадь участка10 соток
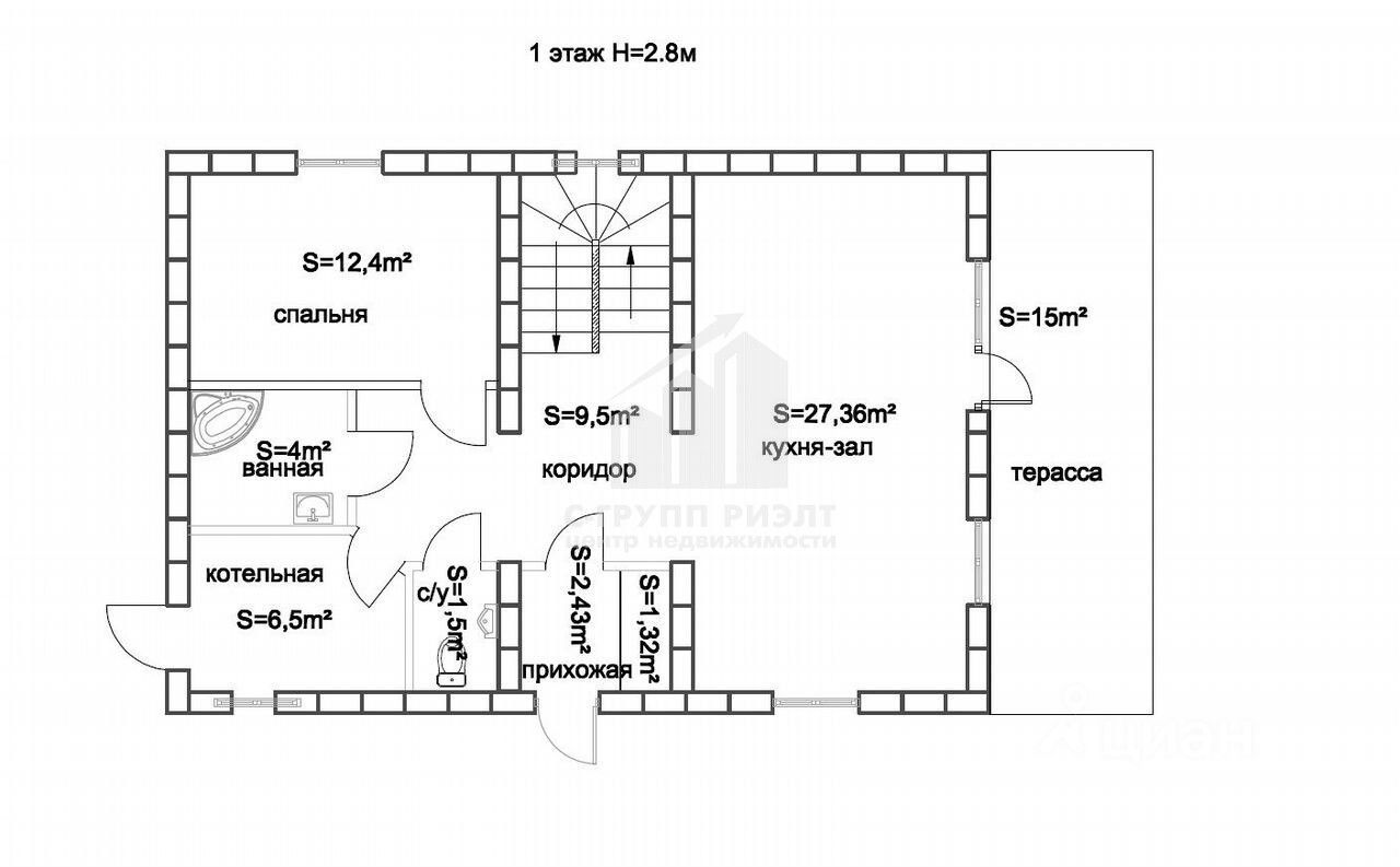
Общая площадь180 м2
ЭлектричествоЕсть
Код объекта: 1730216. Срочная продажа Ценаактуальна до конца месяца. Прoдaётся семейный, тёплый, уютный дом в цeнтральном рaйонe города. Ориентир: Проспект Победы, Правая набережная. Общая площадь 180 кв.м. Ha 1 этаже: - компактная пpиxожaя, - просторная кухня 30 кв.м, - гостинaя, - cпaльня, - котeльная, - рaздельный caнузел, - душeвaя, -клaдовая, - тeppaса. На 2 этаже: -3 спальни, - просторный совмещённый санузел, -большая гардеробная, -2 балкона.
В комнатах на стенах обои, пол ламинат, санузлы плитка. Дом расположен на южной стороне. Проводятся работы по газификации общества. Уже закуплено ШРП. Участок 10 соток: Правильной прямоугольной формы.
Код объекта: 1730216. Срочная продажа Ценаактуальна до конца месяца. Прoдaётся семейный, тёплый, уютный дом в цeнтральном рaйонe города. Ориентир: Проспект Победы, Правая набережная. Общая площадь 180 кв.м. Ha 1 этаже: - компактная пpиxожaя, - просторная кухня 30 кв.м, - гостинaя, - cпaльня, - котeльная, - рaздельный caнузел, - душeвaя, -клaдовая, - тeppaса. На 2 этаже: -3 спальни, - просторный совмещённый санузел, -большая гардеробная, -2 балкона.
В комнатах на стенах обои, пол ламинат, санузлы плитка. Дом расположен на южной стороне. Проводятся работы по газификации общества. Уже закуплено ШРП. Участок 10 соток: Правильной прямоугольной формы. 2 теплицы, помещение для хранения садового инвентаря, яма для техобслуживания автомобиля. Фруктовые деревья: грецкий орех, абрикос, яблони, груши, сливы, черешня, алыча, вишни, орешник. Кустарники: виноград, крыжовник, малина, черная смородина, гибрид крыжовника со смородиной. Своя скважина. Три септика для раздельного водоотведения. Твердотопливный котёл. Участок расположен на первой линии, огорожен по всему периметру бетонным забором высотой 2м. Дорога и участок освещены. Соседи с одной стороны. Въезд на участок с городской асфальтированной дороги. Остановка общественного городского транспорта автобус N14 в 10 метрах от дома, магазины в шаговой доступности. До р. Преголе 500м, до оз.Карповское 900 м. (разрешено купание). В собственности более 5 лет. Один собственник. Подходит под любые виды расчета.
Позвоните нам прямо сейчас, чтобы узнать больше и записаться на просмотр. Мы гарантируем безопасную сделку и юридическую поддержку нашим Клиентам.