Если цена в объявлении изменится, мы сразу сообщим вам об этом на электронную почту.
Нажимая «Подписаться», вы соглашаетесь с правилами.
продам дом, Пражская11 000 000 ₽
12 июня 2025
Дата публикации объявления
Обн. 12 апр
Дата обновления объявления
2
Количество просмотров (+ просмотры за сегодня)
65 050 ₽/м²
Чистая продажа
Термин "Чистая продажа" означает, что в квартире никто не прописан или
есть куда выписаться и вывезти вещи. Это лучший вариант для покупателя.
Вероятность срыва сделки минимальна.
Этажей1
Площадь участка9 соток
Общая площадь169,1 м2
ЭлектричествоЕсть
Газоснабжениецентральное
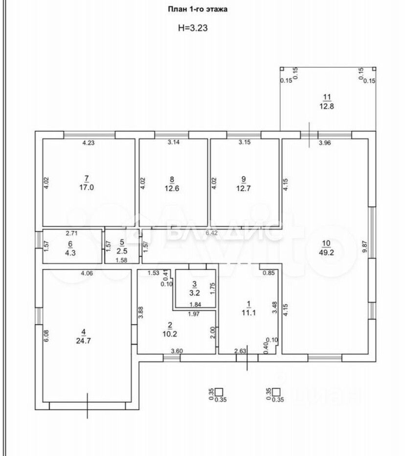
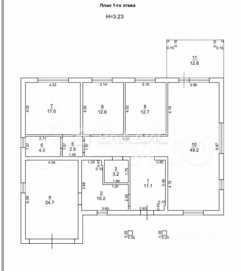
Код объекта: 1636860. Продается современный одноэтажный дом 168,3 м² (участок 9 соток) в сером ключе с гаражом, пос. Холмогоровка.
Ориентиры: мик. район Чкаловск, Советский пр-кт.
Срочно продается новый, современный одноэтажный дом премиум-класса в популярном районе. Идеальное решение для комфортной жизни!
1 собственник, без обременений, быстрый выход на сделку.
Площадь дома: 169,1 кв.м. Комнаты: 17, 12,6, 12,7 кв.м. Огромная кухня-гостиная: 49,2 кв.м. Два санузла: 4,3, 3,2 кв.м. Холл: 11,1 кв.м. Котельная мастерская: 10,2 кв.м. Терраса: 12,8 кв.м. Гараж: 24,7 кв.м. Высота потолков: 3,23 м.
Код объекта: 1636860. Продается современный одноэтажный дом 168,3 м² (участок 9 соток) в сером ключе с гаражом, пос. Холмогоровка.
Ориентиры: мик. район Чкаловск, Советский пр-кт.
Срочно продается новый, современный одноэтажный дом премиум-класса в популярном районе. Идеальное решение для комфортной жизни!
1 собственник, без обременений, быстрый выход на сделку.
Площадь дома: 169,1 кв.м. Комнаты: 17, 12,6, 12,7 кв.м. Огромная кухня-гостиная: 49,2 кв.м. Два санузла: 4,3, 3,2 кв.м. Холл: 11,1 кв.м. Котельная мастерская: 10,2 кв.м. Терраса: 12,8 кв.м. Гараж: 24,7 кв.м. Высота потолков: 3,23 м.
Коммуникации: - электричество, - скважина, - септик, - газ проходит по участку, в ближайшее время будет производится подключения.
При строительстве дома использовались качественные материалы. Проведена разводка под: камеры видеонаблюдения, сигнализацию, в комнатах кабель и интернет - можно использовать под ''Умный дом''.
Рядом расположены: Парк Усадьбы Фухсберг, детский садик, остановки общественного транспорта в сторону курортных городов (Зеленоградск, Светлогорск, Янтарный, Пионерск, Донское), в школу детей возит автобус. До города 5 минут, до моря 25. Имеются магазины, детские спортивные секции и центр развития детей. В шаговой доступности расположены новые теннисные корды, конный центр Rauschen.
Возможен обмен на Вашу недвижимость с доплатой!
Дарим 500 000 рублей на путешествие! Покупайте или продавайте недвижимость вместе с агентством ''Авеню-Риэлт Владис'' и получайте шанс отправиться в яркое путешествие! В конце года 3 счастливчика получат сертификаты номиналом 250, 150 и 100 тысяч рублей. Направление тура Вы можете определить самостоятельно. Победитель будет выбран случайным образом. Подробнее узнавайте у своего агента или в офисах ''Авеню-Риэлт Владис''.
Звоните, чтобы узнать детали и договориться о просмотре!