Если цена в объявлении изменится, мы сразу сообщим вам об этом на электронную почту.
Нажимая «Подписаться», вы соглашаетесь с правилами.
продам дом, Зеленая, 3522 500 000 ₽
25 мар 2025
Дата публикации объявления
Обн. вчера
Дата обновления объявления
4
Количество просмотров (+ просмотры за сегодня)
60 386 ₽/м²
Чистая продажа
Термин "Чистая продажа" означает, что в квартире никто не прописан или
есть куда выписаться и вывезти вещи. Это лучший вариант для покупателя.
Вероятность срыва сделки минимальна.
Площадь участка6 соток
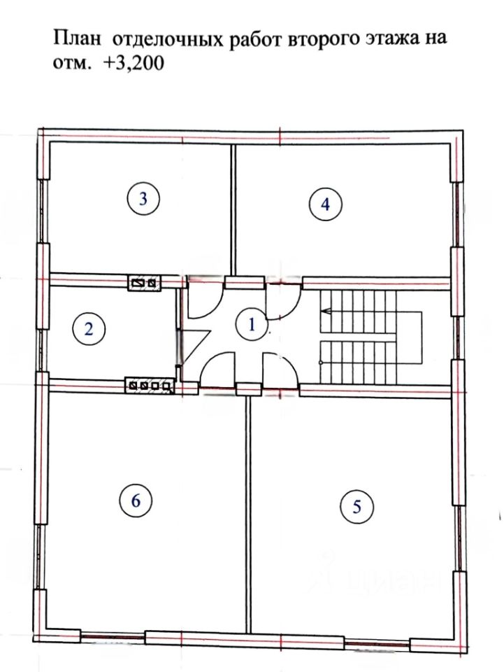
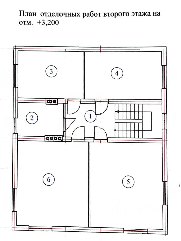
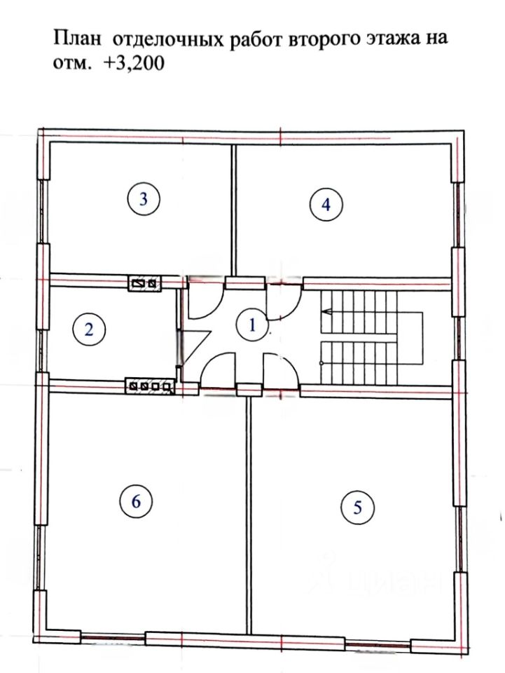
Общая площадь372,6 м2
Продается дом в Зеленоградске на побережье Балтийского моря!
Предлагаем вашему вниманию дом в Малиновке площадью 372,6 кв. м на учатке 6 соток, расположенное всего в 500 метрах от живописного пляжа с ресторанами, прогулочными и велодорожками, а также магазинами. Дом в Зеленоградске Калининградской области - идеальное место для тех, кто ценит комфорт и качество жизни у моря!
Основные характеристики:
• Площадь: 372,6 кв. м
• Этажность: 2 наземных этажа, мансарда и полноценный цокольный этаж
• Планировка: гибкая, подходит как для проживания большой дружной семьи, так и для организации гостиницы, дома отдыха или хостела.
• Водопровод и канализация и
центральные.
Продается дом в Зеленоградске на побережье Балтийского моря!
Предлагаем вашему вниманию дом в Малиновке площадью 372,6 кв. м на учатке 6 соток, расположенное всего в 500 метрах от живописного пляжа с ресторанами, прогулочными и велодорожками, а также магазинами. Дом в Зеленоградске Калининградской области - идеальное место для тех, кто ценит комфорт и качество жизни у моря!
Основные характеристики:
• Площадь: 372,6 кв. м
• Этажность: 2 наземных этажа, мансарда и полноценный цокольный этаж
• Планировка: гибкая, подходит как для проживания большой дружной семьи, так и для организации гостиницы, дома отдыха или хостела.