2-к, Старшины Дадаева, 55 корп. 2 Показать на карте
Ленинградский район
Калининград
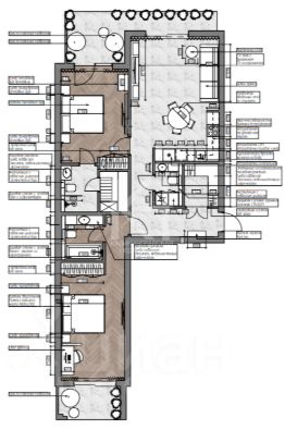
Продаётся 2-комнатная квартира в сданном доме (Дом 2 (4 этап)), срок сдачи: IV-кв. 2025, общей площадью 58.33 кв.м., на 2 этаже. Квартиры от надежного застройщика ''КалининградСтройИнвест'' с опытом более 29 лет на строительном рынке!Этапы строительства ЖК ''История'':1 дом I этап2 дом II, III, IX этапРасположение:Жилой квартал из двух девятиэтажных домов располагается в Ленинградскомрайоне Калининграда, на ул. Дадаева. Комплекс находится в районе с развитойинфраструктурой. Удобный выезд в сторону морского побережья по ул.Александра Невского. До центра города 10 минут на автомобиле.В Шаговой доступности располагаются:- ТЦ ''Виктория''- Школа 58, 33- Детский сад 125, 23 (ясли), 123, 11- Нахимовское училище- Академия народного хозяйства (РАНХиГС)- Калининградский морской проектный институт (КМПИ)- Фитнес-клубы (4 шт )- Частная стоматология и поликлиника Эдкар, центр красоты и здоровья.А так же рестораны, парикмахерские, кофейни, кондитерские.Особенности квартала:Жилой квартал выполнен в классическом архитектурном стиле с адаптацией подсовременные тенденции в области строительства. Фасад домов выполнен всветлых тонах, на последних этажах размешены французские балконы, на которыхочень уютно будут смотреться цветы и любые живые растения. Благоустройствоприлегающей территории и внутридворового пространства будет выполнено поархитектурному проекту с учетом современных материалов и использованиякачественных малых архитектурных форм. Сам комплекс находится в окружениималоэтажной застройки и имеет свой подземный паркинг, что создает дополнительный комфорт.Преимущества квартала:- отличное расположение- вьезд/выезд на ул. Артиллерийскую и ул.Дадаева- в 10 минутах пешком от набережной озера ''Верхнее''- подземный паркинг и кладовые- отделка подъездов по индивидуальному дизайн-проекту- безбарьерный вход в подъезд (входы с уровня земли)- панорамное остекление в пол верхних этажей- современные бесшумные скоростные лифты с возможностью спуститься вкладовую или паркинг не выходя на улицу- умные домофоны - видеонаблюдение на всей территории комплекса- места стоянки колясок и велосипедов- энергоэффективное наружное освещение жилого квартала- большое количество парковочных мест- охрана на территории- огражденная территория внутреннего двора- двор без машин- на первом этаже дома 1 будут располагаться коммерческие помещения (Студиядля детей и взрослых, небольшой частный детский сад, кофейня)- разнообразные продуманные планировки : студии площадью от 25 м2, однокомнатные от 36 м2,двухкомнатные от 60м2, трехкомнатные от 70м2.Купить квартиру можно с помощью рассрочки, ипотеки, а также с использованием средств материнского капитала.+ Субсидированная ипотека (IT-ипотека и семейная ипотека)+ Материнский капитал+ Военная ипотекаЗвоните, чтобы узнать подробнее!
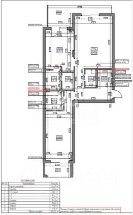
58 м2
2 / 9 этаж
Кирпич - монолит
- Показать контакты
- Добавить в избранное
58 м2
2 / 9 этаж
Кирпич - монолит
10 450 000
179 153 /м2
Новостройка,
дом сдан
дом сдан
