2-к, Киевская, 36 Показать на карте
Московский район
Калининград
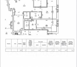
2-кк квартира в Московском районе г. Калининграда! Отличный вариант для проживания или инвестиции с возможностью сделать ремонт под себя.Удобная локация с быстрым выездом в любую часть города. Общая площадь: 50,4 м², Этаж: 5/5, Дом: кирпичный, Лифта нет, Экспликация помещений - на плане квартиры. Цена ниже средней по району, так как:• уже внесён задаток за встречную покупку квартиры большей площади,• будущему собственнику необходимо учитывать вложения в ремонт. Юридическая информация:• Квартира в собственности более 3 лет,• Полная сумма в договоре,• 1 собственник,• Без скрытых нюансов,• В настоящий момент квартира находится в ипотеке (небольшой остаток),• Ипотека может быть погашена как собственником самостоятельно, так и за счёт средств покупателя перед сделкой - механизм полностью безопасный и прозрачный, подробно объясню при общении! Состояние квартиры:Квартира в жилом состоянии, пригодна для проживания сразу после покупки, однако требует ремонта!Это хороший вариант для покупателей, которые хотят: приобрести квартиру по цене ниже рынка с дальнейшим увеличением стоимости объекта после ремонта Локация и инфраструктура:• До Южного вокзала - около 5 минут на автомобиле,• До центра города - 1015 минут,• Рядом: детские сады, школы, супермаркеты, мини-рынок, кинотеатр,• Отличная транспортная доступность,• Общественный транспорт ходит во все районы города. Московский район - один из самых удобных районов города для постоянного проживания благодаря развитой инфраструктуре и транспортной сети. Звоните или пишите - отвечу на все вопросы и организую просмотр квартиры!Арт. 135944016
50 м2
5 / 5 этаж
Кирпич
- Показать контакты
- Добавить в избранное
50 м2
5 / 5 этаж
Кирпич
4 695 000
93 155 /м2
