1-к, Теодор Кроне ЖК, 3 Показать на карте
Центральный район
Калининград
При 100% оплате за собственные средства (или ипотека без субсидирования), а также при рассрочке на 3 месяца, предоставляется СКИДКА!Теодор Кроне — современный жилой квартал класса комфорт+ в Центральном районе Калининграда с собственным спа-комплексом и комьюнити-центром.Здесь продумано все для тех, кто ценит качество, эстетику и полноценную жизнь рядом со всем необходимым. 99% повседневных услуг уже на территории жилого комплекса.Жить в ''Теодор Кроне'' — значит тратить меньше времени на быт и больше на себя. 3 очереди строительства: 1 очередь - сдана, 2 очередь 1 этап - ввод апрель 2026 года, 2 очередь 2 этап и 3 очередь - ввод 2030 год.Уникальные особенности проекта:СПА-центр и фитнес-зал в домеСовременный коворкингДетский клуб и бьюти-салонКинозалы и амфитеатр для культурных мероприятийСервисы для жизни: прачечная, химчистка, аптека, поликлиника, супермаркет, пункты выдачи заказов, кафе-пекарня у домаСобственная управляющая компания с дополнительными сервисами: прокат, домашний мастер, клинингКвартиры выполнены в предчистовой отделке White BoxДизайнерские входные группы и лоббиТранспортная доступность:Удобный выезд на основные транспортные развязки — вы быстро доберетесь в любую точку города. До побережья Балтийского моря можно доехать за 20 минут.В пешей доступности школы, детские сады, городской парк ''Теодор Кроне'', собственная набережная, озеро, прогулочные и велосипедные маршруты, историческая кирха Юдиттен.Для покупателей квартир действуют все ипотечные программы (IT, семейная, военная, стандартная) и материнский капитал в качестве первого взноса. Допускается рассрочка с первоначальным взносом, а также 100% оплата за собственные средства. Помощь с оформлением сделки от ипотечного брокера и юристов застройщика.Больше подробностей вы можете узнать по телефону отдела продаж,проведем консультацию в удобное для вас время. Звоните!Не является публичной офертой, предложение ограничено, оценивайте свои финансовые возможности и риски. Застройщик: ООО Специализированный Застройщик Эко-Город. Проектная декларация размещена на сайте наш.дом.рф. Сроки, условия проведения акций и актуальные цены на сайте девелопера. Когда вы выбираете недвижимость от К8 — вы выбираете комфортную, продуманную и растущую в цене среду для жизни или инвестиций.Что вы получаете:1. Недвижимость, которая дорожает: каждый проект создаётся так, чтобы его ценность росла. Вы покупаете актив, который работает на вас.2. Продуманные концепции: вы живете в пространстве с идеей, смыслом и логикой - где каждая деталь служит вашему удобству.3. Настоящий комфорт: планировки, которые экономят место и время. Дома, где технические решения подчинены вашему образу жизни.4. Эстетику, которая радует каждый день: архитектура, на которую приятно смотреть, и окружение, которое радует.5. Качество, которое чувствуется: материалы, инженерия, благоустройство - вы видите и ощущаете результаты внимательного подхода.6. Заботу на всех этапах: вам помогают подобрать недви
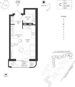
34 м2
9 / 9 этаж
Кирпич - монолит
- Показать контакты
- Добавить в избранное
34 м2
9 / 9 этаж
Кирпич - монолит
5 231 929
153 429 /м2
Новостройка,
II-2028
II-2028
