3-к, Дзержинского, 1 Показать на карте
Московский район
Калининград
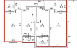
Код объекта: 2085604.Уютная просторная трёхкомнатная квартира в туристическом районе Калининграда ждёт своих новых жильцов!Прекрасное расположение дома в самом центре города у реки, она идеально подойдёт как для семей, так и сдачи в аренду.Квартира имеет общую площадь 70 квадратных метров, из которых 52,1 метра — жилая площадь.Три изолированные комнаты с высокими потолками (3,2 метра) создают ощущение простора и свободы. Площадь комнат составляет 10,6, 19,6 и 21,9 квадратных метров — достаточно места для всех членов семьи. Кухня площадью 7,8 квадратных метров станет местом для семейных ужинов и дружеских посиделок. Совмещённый санузел оборудован всем необходимым.Дом, построенный в 1945 году из кирпича с железобетонными перекрытиями, отличается надёжностью и долговечностью. В квартире сделан капитальный качественный ремонт, заменена вся проводка, трубы.Квартира полностью готова к проживанию или сдачи.Во дворе всегда есть парковочное место для вашего автомобиля.Окна выходят как на улицу, так и во двор, что делает квартиру светлее.Рядом с домом есть всё необходимое для комфортной жизни: магазины, школы, детские сады и парки.Дом расположен в непосредственной близости к самым популярным туристическим объектам, таким как Рыбная деревня, остров Канта с Кафедральным собором и Третьяковская галерея.Возможен обмен с доплатой.Не упустите шанс стать владельцем этой уютной квартиры!Звоните нам прямо сейчас, чтобы узнать больше и записаться на просмотр.Мы предоставляем юридическую поддержку нашим Клиентам. Поможем одобрить ипотеку со сниженной ставкой.Дарим 500 000 рублей на путешествие! Покупайте или продавайте недвижимость вместе с агентством ''Авеню-Риэлт Владис'' и получайте шанс отправиться в путешествие Вашей мечты!
70 м2
2 / 5 этаж
Кирпич
- Показать контакты
- Добавить в избранное
70 м2
2 / 5 этаж
Кирпич
8 950 000
127 857 /м2
