Если цена в объявлении изменится, мы сразу сообщим вам об этом на электронную почту.
Нажимая «Подписаться», вы соглашаетесь с правилами.
продам 2-к, Московский проспект, 786 200 000 ₽
27 фев
Дата публикации объявления
Обн. 1 апр
Дата обновления объявления
114 603 ₽/м²
Чистая продажа
Термин "Чистая продажа" означает, что в квартире никто не прописан или
есть куда выписаться и вывезти вещи. Это лучший вариант для покупателя.
Вероятность срыва сделки минимальна.
ПРОДАЕТСЯ 2-х комнатная квартира с ХОРОШЕЙ, УДАЧНОЙ ПЛАНИРОВКОЙ в Ленинградском районе по адресу: Московский проспект д. 78.
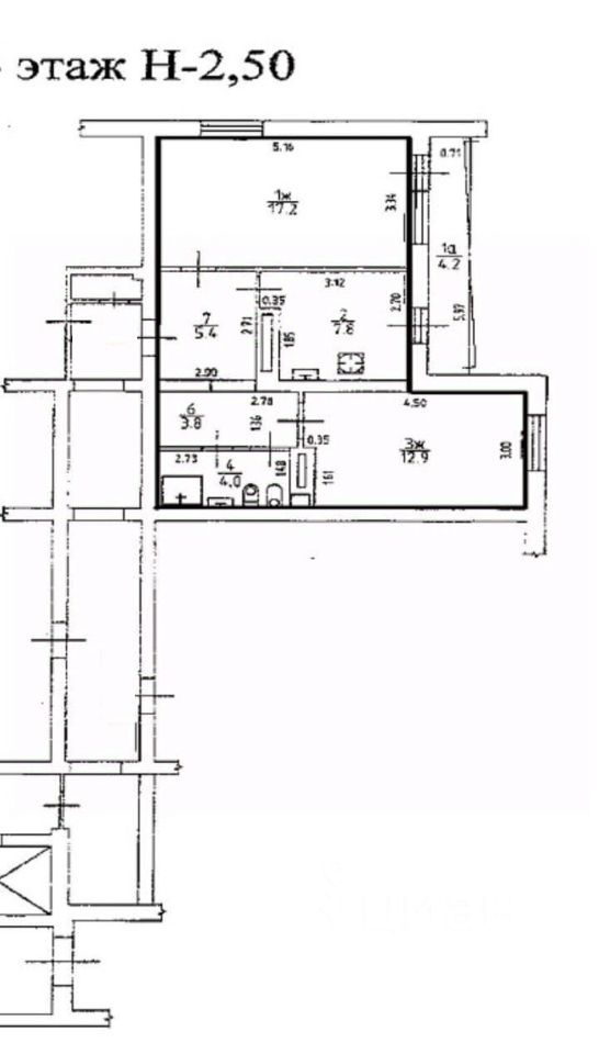
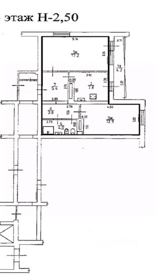
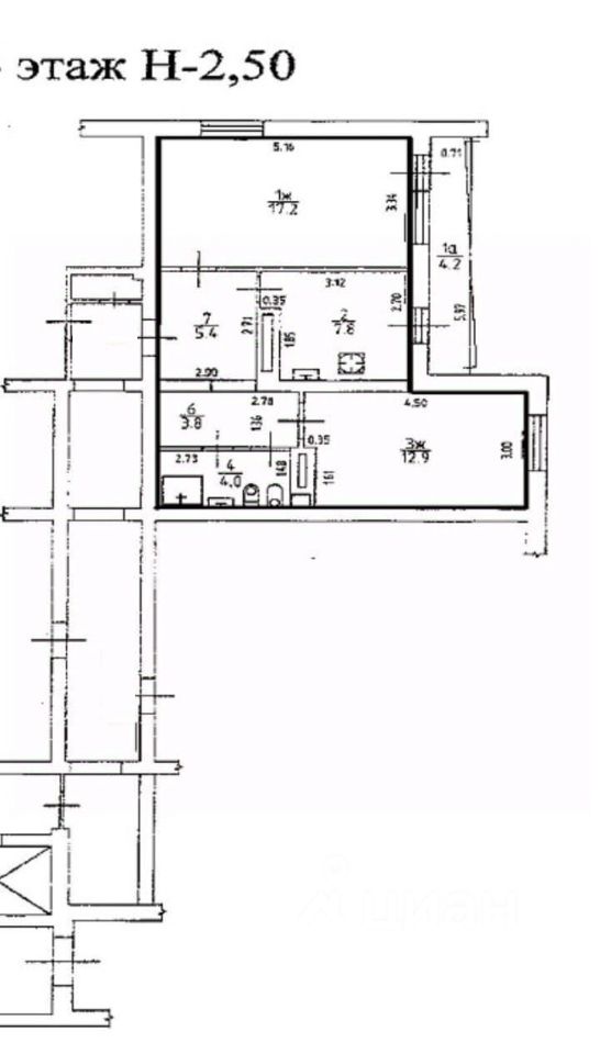
КВАРТИРА: общая площадь - 51,4 кв.м комнаты изолированные - 17,2 и 12,9 кв.м кухня 7,8 кв.м, застекленная лоджия 4,2 кв.м с выходом из комнаты и кухни совмещенный санузел в кафеле с сантехникой, душевой кабиной и биде. окна квартиры выходят на мост и в тихий зеленый двор хороший обзор из окон БЕЗ ПЕРЕПЛАНИРОВОК ТЕПЛАЯ и СВЕТЛАЯ Центральное отопление есть теплосчетчики на батареях установлены счетчики на воду, газ и электроэнергию.
РЕМОНТ КОСМЕТИЧЕСКИЙ: состояние жилое, установлены стеклопакеты, на полу линолеум, обои на стенах, побелены потолки.
ПРОДАЕТСЯ 2-х комнатная квартира с ХОРОШЕЙ, УДАЧНОЙ ПЛАНИРОВКОЙ в Ленинградском районе по адресу: Московский проспект д. 78.
КВАРТИРА: общая площадь - 51,4 кв.м комнаты изолированные - 17,2 и 12,9 кв.м кухня 7,8 кв.м, застекленная лоджия 4,2 кв.м с выходом из комнаты и кухни совмещенный санузел в кафеле с сантехникой, душевой кабиной и биде. окна квартиры выходят на мост и в тихий зеленый двор хороший обзор из окон БЕЗ ПЕРЕПЛАНИРОВОК ТЕПЛАЯ и СВЕТЛАЯ Центральное отопление есть теплосчетчики на батареях установлены счетчики на воду, газ и электроэнергию.
РЕМОНТ КОСМЕТИЧЕСКИЙ: состояние жилое, установлены стеклопакеты, на полу линолеум, обои на стенах, побелены потолки.
ДОМ: квартира расположена в середине дома, на 4 эт./9-ти этажного дома 1980 года постройки. Подъезд: наличие домофона, установлен удобный пандус, 2 лифта пассажирских. Свободная парковка около дома.
ИНФРАСТРУКТУРА: ЦЕНТР города детские сады 31, 94 школа 36, 25 и 24 корпус гимназии 32 колледж им. С.В. Рахманинова юридический институт БФУ поликлиника детская аптеки, стоматологии магазины и супермаркеты Пятерочка, Спар салоны красоты кафе, пекарни и рестораны почта, банки службы доставки Озон и Валберис прогулочная зона: набережная Адмирала Трибуца, остров Им. Канта, Нижнее озеро.
Подходят все виды расчета: МАТ. КАПИТАЛ, ИПОТЕКА (помощь в оформлении), СЕРТИФИКАТЫ.
ЗВОНИТЕ, организую показ в удобное время.
Ориентир: ул. Фрунзе, ул. 9 Апреля, ул. Грига, ул. Набережная Адмирала Трибуца, Литовский Вал