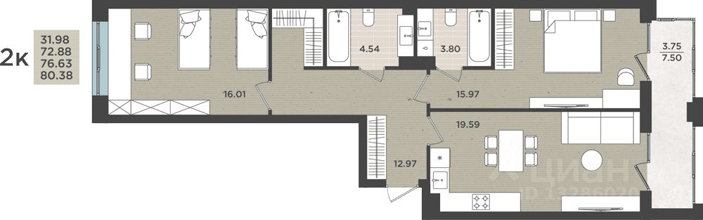
Продаётся 2-комнатная квартира в сданном доме (Земельная, 30 (Дом 1.1)), срок сдачи: IV-кв. 2022, общей площадью 76.63 кв.м., на 1 этаже. Новый жилой комплекс ''Горький'' от застройщика ''Калининградстройинвест'' расположен по адресу: г. Калининград, улица Горького.