Если цена в объявлении изменится, мы сразу сообщим вам об этом на электронную почту.
Нажимая «Подписаться», вы соглашаетесь с правилами.
продам 1-к, Молодой гвардии, 349 700 000 ₽
22 дек
Дата публикации объявления
Обн. вчера
Дата обновления объявления
174 460 ₽/м²
Чистая продажа
Термин "Чистая продажа" означает, что в квартире никто не прописан или
есть куда выписаться и вывезти вещи. Это лучший вариант для покупателя.
Вероятность срыва сделки минимальна.
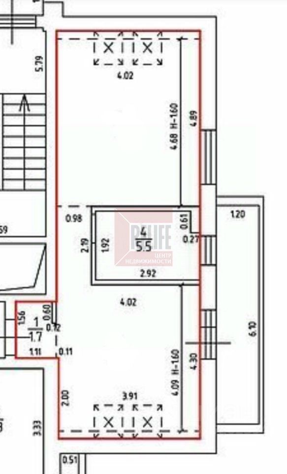
Арт. 127959890 Продается эксклюзивная двухуровневая 1 комнатная квартира в жилом комплексе комфорт класса ''Адрес Счастья''. Квартира расположена на 9 этаже 10-ти этажного дома.
Общая площадь квартиры 55,6 кв.м. Планировка квартиры функциональна и продумана до мелочей, что обеспечивает достойное и комфортное проживание. Просторная кухня-гостиная площадью 16,8 кв.м. с выходом на балкон. Комната 17,3 кв.м. с антресолью 11,2 кв.м, ванная комната с окном! Высота потолков 5 метра. Автономное отопление регулируется компактным теплопунктом в квартире, установлена система теплый пол.
Для комфорта новых хозяев, в квартире возможно выполнение ремонта под ключ и полная комплектация дома всей необходимой мебелью и техникой, что бы Вы смогли въехать в полностью готовый дом!
Арт. 127959890 Продается эксклюзивная двухуровневая 1 комнатная квартира в жилом комплексе комфорт класса ''Адрес Счастья''. Квартира расположена на 9 этаже 10-ти этажного дома.
Общая площадь квартиры 55,6 кв.м. Планировка квартиры функциональна и продумана до мелочей, что обеспечивает достойное и комфортное проживание. Просторная кухня-гостиная площадью 16,8 кв.м. с выходом на балкон. Комната 17,3 кв.м. с антресолью 11,2 кв.м, ванная комната с окном! Высота потолков 5 метра. Автономное отопление регулируется компактным теплопунктом в квартире, установлена система теплый пол.
Для комфорта новых хозяев, в квартире возможно выполнение ремонта под ключ и полная комплектация дома всей необходимой мебелью и техникой, что бы Вы смогли въехать в полностью готовый дом!
Жилой комплекс ''Адрес Счастья'' - новый уровень комфорта в сфере массовой жилой застройки. Энергосберегающее панорамное остекление открывает живописные виды и создает солнечное настроение. Благоустройство придомовой территории разработано в соответствии с концепцией ''двор без машин'', что обеспечивает безопасность жителей.
Для удобства жителей комплекса предусмотрено всё: гостевой и подземный паркинг, сеть велодорожек с двусторонним движением, колясочные, велопарковки и общественный туалет. Изюминка благоустройства внутреннего двора - универсальная спортивная площадка для активных видов спорта, спроектированная таким образом, чтобы обеспечить естественное дневное освещение для подземного паркинга.
Крыши домов стали зонами отдыха на открытом воздухе, где можно заниматься спортом и йогой. Развитая инфраструктура жилого квартала: рестораны, кафе, салоны красоты, магазины, детские школы искусств, аптеки, детская и взрослая поликлиники, торговый центр, детские сады, школа, фитнес-залы.
Удобная транспортная развязка: до Рыбной деревни и Кафедрального собора-7 минут, до аэропорта Храброво - 18 минут, до побережья Балтийского моря - 22 минуты. Будем рады поделиться с вами еще более подробной и развернутой информацией по телефону или же в рамках личной встречи. Обращайтесь к нам в любое время!