Если цена в объявлении изменится, мы сразу сообщим вам об этом на электронную почту.
Нажимая «Подписаться», вы соглашаетесь с правилами.
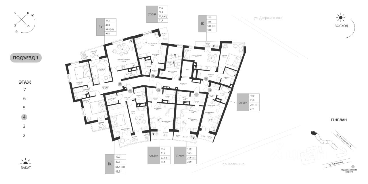
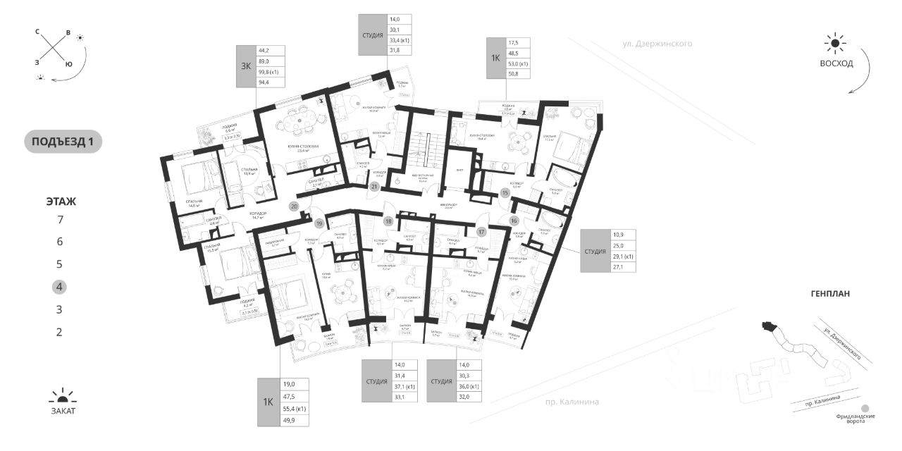
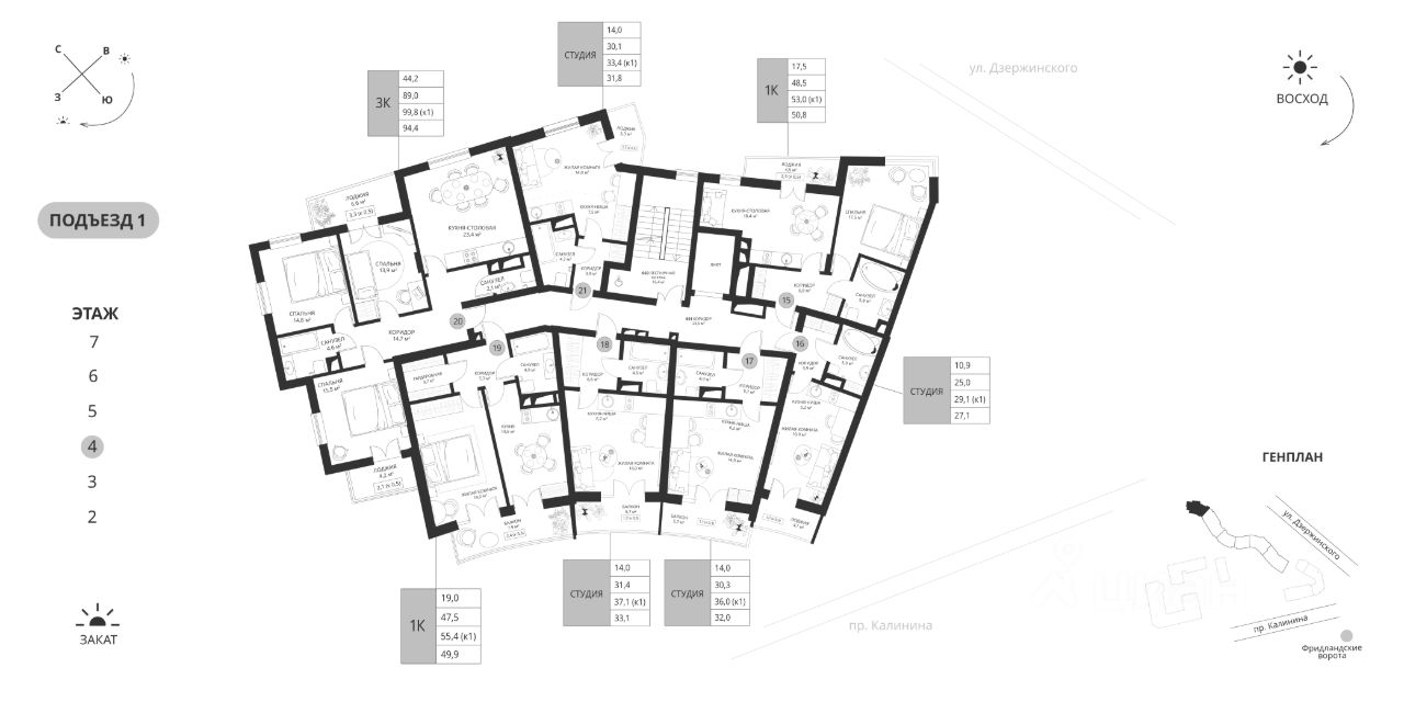
продам 3-к, Калинина проспект, 11718 587 794 ₽
25 ноя
Дата публикации объявления
Обн. сегодня
Дата обновления объявления
Спецпредложение
Турбо x8
196 905 ₽/м²
Чистая продажа
Термин "Чистая продажа" означает, что в квартире никто не прописан или
есть куда выписаться и вывезти вещи. Это лучший вариант для покупателя.
Вероятность срыва сделки минимальна.
ЖК Фридланд 2 очередь - жилой комплекс бизнес-класса в центре Калининграда со СПА-комплексом в доме, круглогодичным подогреваемым бассейном во дворе и собственной сервисной компанией, с функцией управления квартирами и сдачи их в аренду. Ввод в эксплуатацию по РНС - 1 квартал 2030, планируемый 3 кв. 2028.
ЖК Фридланд 2 очередь - жилой комплекс бизнес-класса в центре Калининграда со СПА-комплексом в доме, круглогодичным подогреваемым бассейном во дворе и собственной сервисной компанией, с функцией управления квартирами и сдачи их в аренду. Ввод в эксплуатацию по РНС - 1 квартал 2030, планируемый 3 кв. 2028.
Комплекс окружен ключевыми городскими достопримечательностями: Южный парк и ФОК Набережная Рыбной деревни, реки Преголи Остров Канта, Кафедральный собор Филиалы Третьяковской галереи и Большого театра Музей Фридландские ворота
Особенности проекта: Спа в доме Бассейн во дворе Комьюнити-центр Коворкинг-зоны для встреч и переговоров Фитнес-центр в доме Лаунж-пространства для отдыха Мастерские комнаты для хобби и творчества Сервисы для жизни: прачечная, химчистка, магазины, поликлиника Подземный паркинг Закрытая территория, двор-сад, арт-объекты, вертикальное озеленение Дизайнерская входная группа, авторская подсветка Предчистовая отделка White box Инвестиционные квартиры с управлением
Для покупателей квартир действуют все ипотечные программы (IT, семейная, военная) и материнский капитал в качестве первого взноса. Допускается рассрочка на период строительства с первоначальным взносом, а также 100% оплата за собственные средства. Помощь с оформлением сделки от ипотечного брокера и юристов застройщика.
ЖК Фридланд подходит как для комфортной жизни в центре города, так и для инвестиций: каждый метр работает на капитализацию!
Больше подробностей о комплексе вы можете узнать по телефону отдела продаж. Звоните!
Не является публичной офертой, предложение ограничено, оценивайте свои финансовые возможности и риски. Застройщик: ООО Специализированный Застройщик СпецСтрой. Проектная декларация размещена на сайте наш.дом.рф. Сроки, условия проведения акций и актуальные цены на сайте девелопера.
Когда вы выбираете недвижимость от К8 — вы выбираете комфортную, продуманную и растущую в цене среду для жизни или инвестиций.
Что вы получаете: 1. Недвижимость, которая дорожает: каждый проект создаётся так, чтобы его ценность росла. Вы покупаете актив, который работает на вас. 2. Продуманные концепции: вы живете в пространстве с идеей, смыслом и логикой - где каждая деталь служит вашему удобству. 3. Настоящий комфорт: планировки, которые экономят место и время. Дома, где технические решения подчинены вашему образу жизни. 4. Эстетику, которая радует каждый день: архитектура, на которую приятно смотреть, и окружение, которое радует. 5. Качество, которое чувствуется: материалы, инженерия, благоустройство - вы видите и ощущаете результаты внимательного подхода. 6. Заботу на всех этапах: вам помогают подобрать недвижимость именно под ваши цели: для жизни, отдыха или инвестиций - в Светлогорске, Зеленоградске и Калининграде. 7. Возможность стабильного дохода: вы получаете доступ к курортной недвижимости с высокой инвестиционной привлекательностью доходностью выше рынка. 8. Сообщество единомышленников: комфортная среда, и комьюнити-центры, где приятно быть и общат