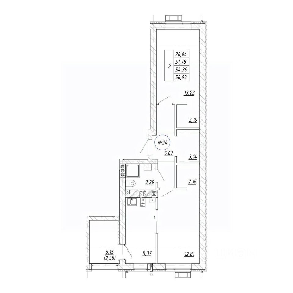
Продаётся 2-комнатная квартира в строящемся доме (Дом 20.4), срок сдачи: II-кв. 2028, общей площадью 54.36 кв.м., на 2 этаже. Новый жилой комплекс ''Яркий'' от застройщика ''СтройИнвестиция'' расположен по адресу: Калининградская обл., г. Зеленоградск, ул. Центральная улица.