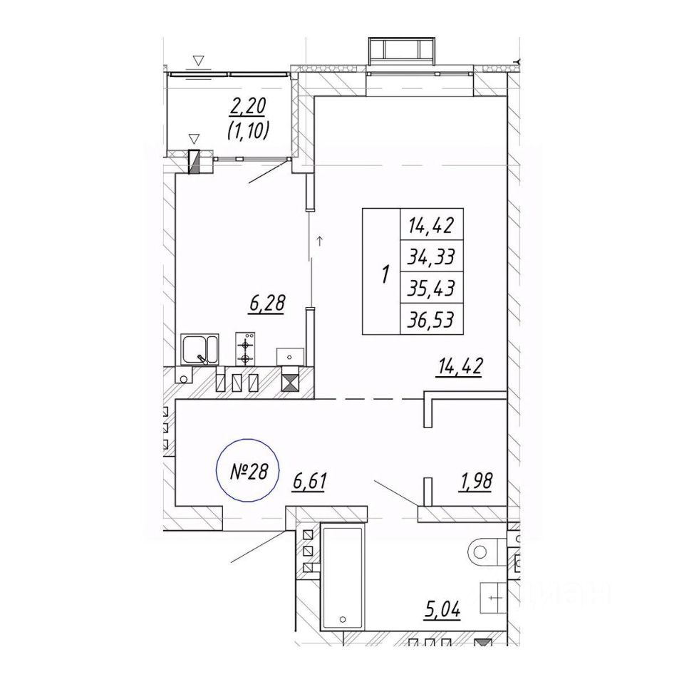
Продаётся 1-комнатная квартира в строящемся доме (Дом 17.2), срок сдачи: II-кв. 2028, общей площадью 35.43 кв.м., на 3 этаже. Новый жилой комплекс ''Яркий'' от застройщика ''СтройИнвестиция'' расположен по адресу: Калининградская обл., г. Зеленоградск, ул. Центральная улица.