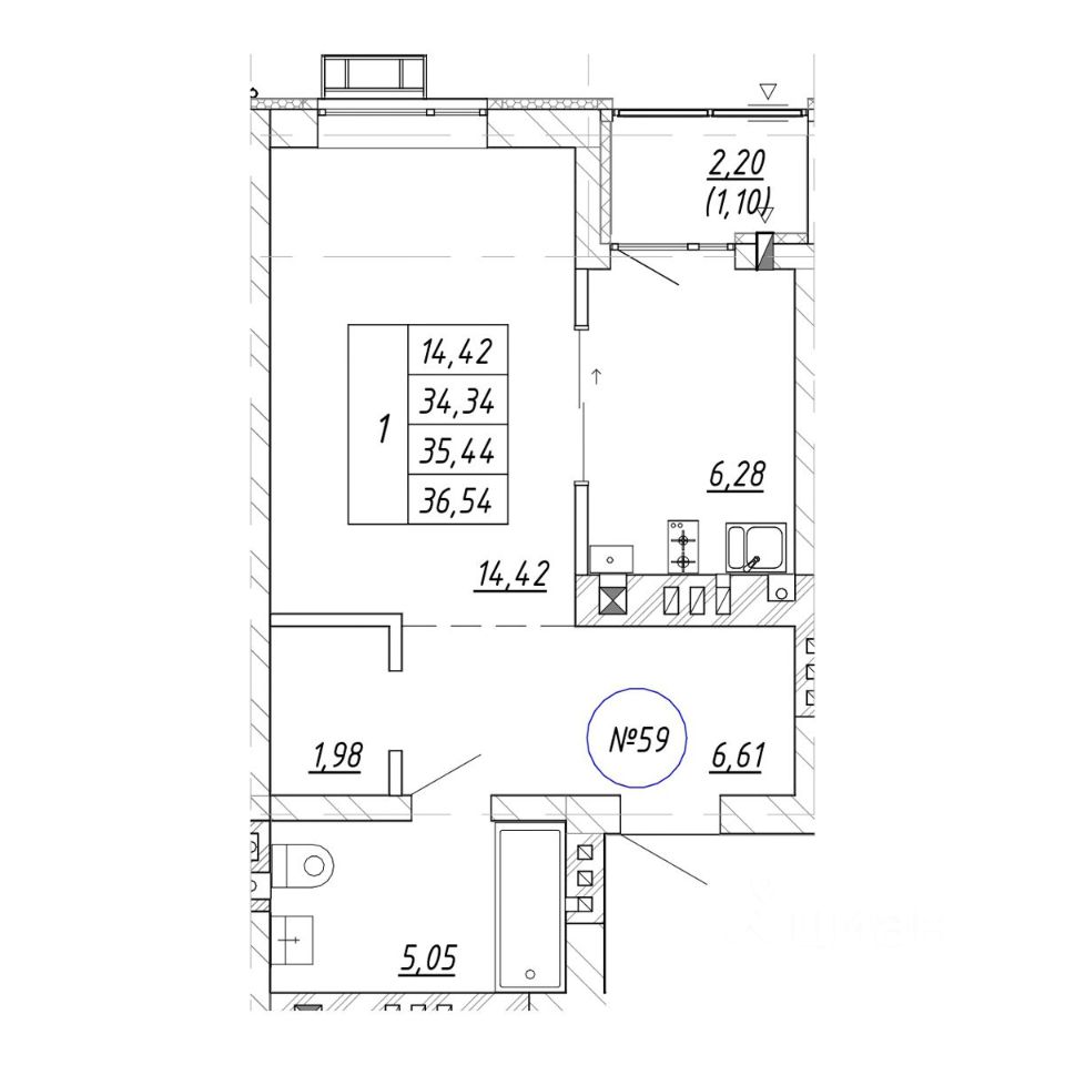
Продаётся 1-комнатная квартира в строящемся доме (Дом 18.1), срок сдачи: II-кв. 2028, общей площадью 35.44 кв.м., на 3 этаже. Новый жилой комплекс ''Яркий'' от застройщика ''СтройИнвестиция'' расположен по адресу: Калининградская обл., г. Зеленоградск, ул. Центральная улица.