Если цена в объявлении изменится, мы сразу сообщим вам об этом на электронную почту.
Нажимая «Подписаться», вы соглашаетесь с правилами.
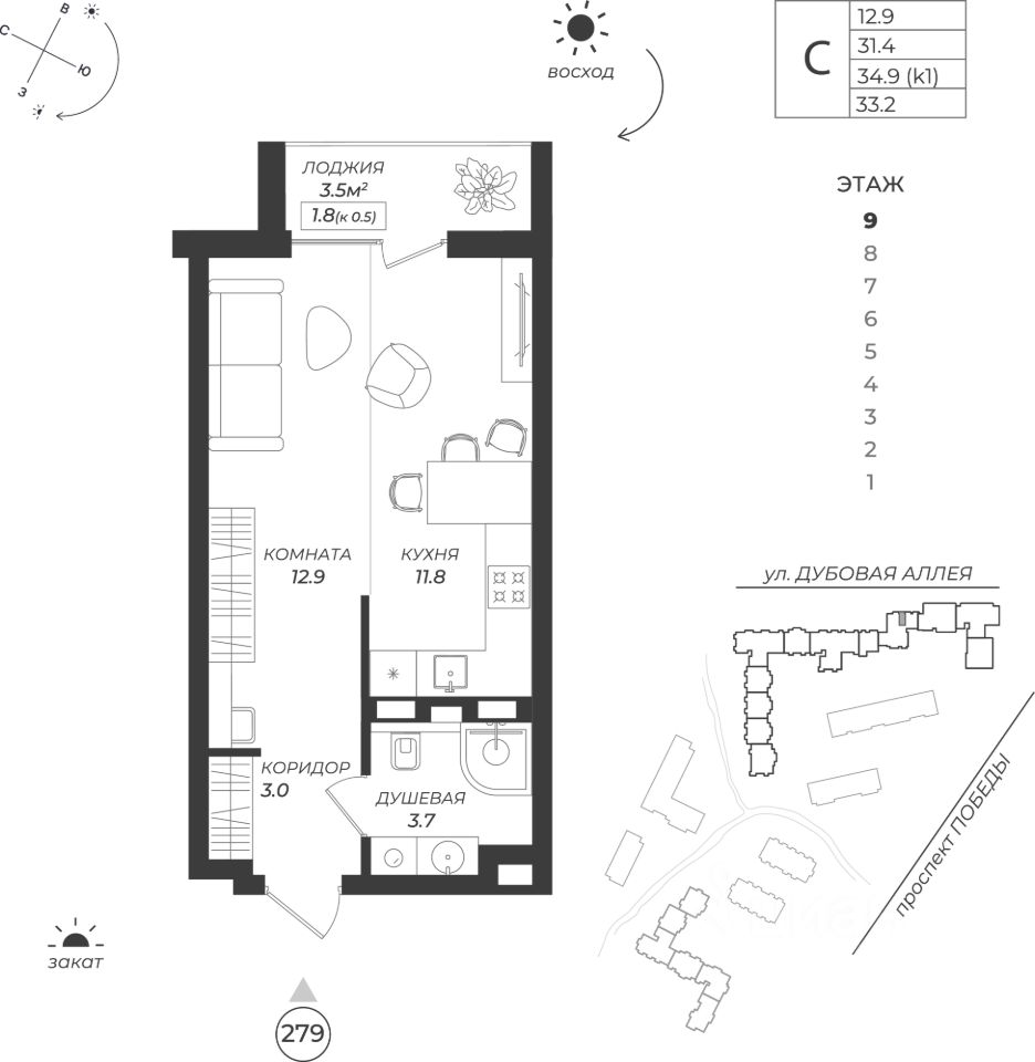
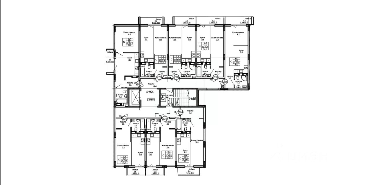
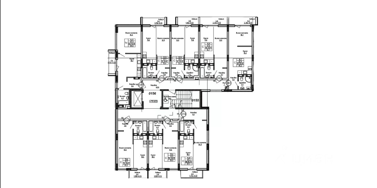
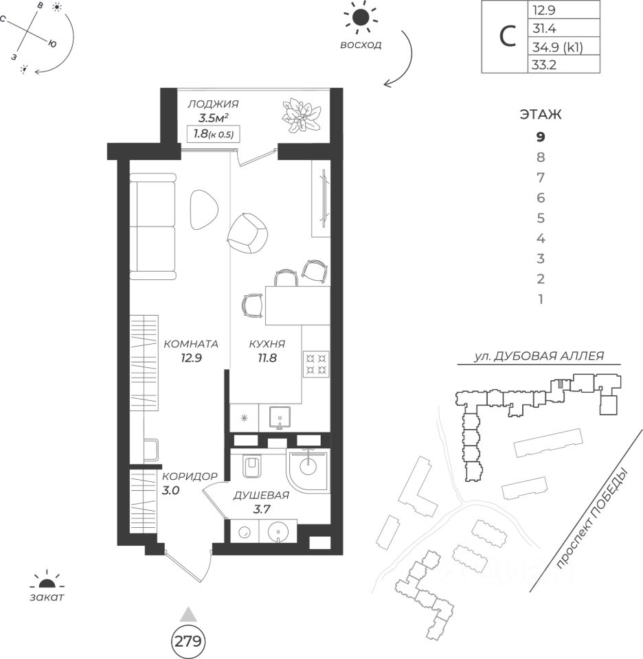
продам 1-к, Теодор Кроне ЖК, 35 834 174 ₽
7 окт
Дата публикации объявления
Обн. вчера
Дата обновления объявления
4
Количество просмотров (+ просмотры за сегодня)
Спецпредложение
Турбо x8
175 728 ₽/м²
Чистая продажа
Термин "Чистая продажа" означает, что в квартире никто не прописан или
есть куда выписаться и вывезти вещи. Это лучший вариант для покупателя.
Вероятность срыва сделки минимальна.
Теодор Кроне — современный жилой квартал класса комфорт+ в Центральном районе Калининграда с собственным спа-комплексом и комьюнити-центром. Здесь продумано все для тех, кто ценит качество, эстетику и полноценную жизнь рядом со всем необходимым. 99% повседневных услуг уже на территории жилого комплекса.
Жить в ''Теодор Кроне'' — значит тратить меньше времени на быт и больше на себя. 3 очереди строительства: 1 очередь - сдана, 2 очередь 1 этап - ввод июль 2026 года, 2 очередь 2 этап и 3 очередь - ввод 2030 год.
Теодор Кроне — современный жилой квартал класса комфорт+ в Центральном районе Калининграда с собственным спа-комплексом и комьюнити-центром. Здесь продумано все для тех, кто ценит качество, эстетику и полноценную жизнь рядом со всем необходимым. 99% повседневных услуг уже на территории жилого комплекса.
Жить в ''Теодор Кроне'' — значит тратить меньше времени на быт и больше на себя. 3 очереди строительства: 1 очередь - сдана, 2 очередь 1 этап - ввод июль 2026 года, 2 очередь 2 этап и 3 очередь - ввод 2030 год.
Уникальные особенности проекта: СПА-центр и фитнес-зал в доме Современный коворкинг Детский клуб и бьюти-салон Кинозалы и амфитеатр для культурных мероприятий Сервисы для жизни: прачечная, химчистка, аптека, поликлиника, супермаркет, пункты выдачи заказов, кафе-пекарня у дома Собственная управляющая компания с дополнительными сервисами: прокат, домашний мастер, клининг Квартиры выполнены в предчистовой отделке White Box Дизайнерские входные группы и лобби
Транспортная доступность: Удобный выезд на основные транспортные развязки — вы быстро доберетесь в любую точку города. До побережья Балтийского моря можно доехать за 20 минут. В пешей доступности школы, детские сады, городской парк ''Теодор Кроне'', собственная набережная, озеро, прогулочные и велосипедные маршруты, историческая кирха Юдиттен.
Для покупателей квартир действуют все ипотечные программы (IT, семейная, военная, стандартная) и материнский капитал в качестве первого взноса. Допускается рассрочка с первоначальным взносом, а также 100% оплата за собственные средства. Помощь с оформлением сделки от ипотечного брокера и юристов застройщика.
Больше подробностей вы можете узнать по телефону отдела продаж,проведем консультацию в удобное для вас время. Звоните!
Не является публичной офертой, предложение ограничено, оценивайте свои финансовые возможности и риски. Застройщик: ООО Специализированный Застройщик Эко-Город. Проектная декларация размещена на сайте наш.дом.рф. Сроки, условия проведения акций и актуальные цены на сайте девелопера.
Когда вы выбираете недвижимость от К8 — вы выбираете комфортную, продуманную и растущую в цене среду для жизни или инвестиций.
Что вы получаете: 1. Недвижимость, которая дорожает: каждый проект создаётся так, чтобы его ценность росла. Вы покупаете актив, который работает на вас. 2. Продуманные концепции: вы живете в пространстве с идеей, смыслом и логикой - где каждая деталь служит вашему удобству. 3. Настоящий комфорт: планировки, которые экономят место и время. Дома, где технические решения подчинены вашему образу жизни. 4. Эстетику, которая радует каждый день: архитектура, на которую приятно смотреть, и окружение, которое радует. 5. Качество, которое чувствуется: материалы, инженерия, благоустройство - вы видите и ощущаете результаты внимательного подхода. 6. Заботу на всех этапах: вам помогают подобрать недвижимость именно под ваши цели: для жизни, отдыха или инвестиций - в Светлогорске, Зеленоградске и Калининграде. 7. Возможность стабильно