Если цена в объявлении изменится, мы сразу сообщим вам об этом на электронную почту.
Нажимая «Подписаться», вы соглашаетесь с правилами.
продам дом, Васильковская (Поречье СНТ), 710 500 000 ₽
13 сен
Дата публикации объявления
Обн. сегодня
Дата обновления объявления
2
Количество просмотров (+ просмотры за сегодня)
35 000 ₽/м²
Чистая продажа
Термин "Чистая продажа" означает, что в квартире никто не прописан или
есть куда выписаться и вывезти вещи. Это лучший вариант для покупателя.
Вероятность срыва сделки минимальна.
Этажей3
Площадь участка10 соток
Общая площадь300 м2
ЭлектричествоЕсть
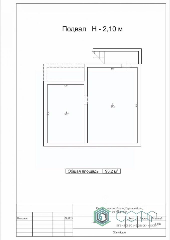
В непосредственной близости к Калининграду и Гурьевску предлагается к продаже современный Дом для большой, дружной семьи (300 м2), на просторном участке земли (10 с). Минимальная приближенность к асфальтированной дороге. Недалеко от дома остановка автобусов и магазины. Дом построен для себя, без экономии на стройматериалах и оборудовании. Всё продумано до мелочей. Планировка в доме очень функциональная: Цокольный этаж (93 м2)- 2 свободных помещения ( кабинет, спортзал, зона patio и т.п.), 1 этаж( 106.4м2) - кухня - гостиная 36.5м2 с выходом на террасу, санузел, комната для гостей и кабинет, 2 этаж (100.8м2)- 2 спальни (по 16м2) с выходом на открытую террасу 47м2, санузел.
В непосредственной близости к Калининграду и Гурьевску предлагается к продаже современный Дом для большой, дружной семьи (300 м2), на просторном участке земли (10 с). Минимальная приближенность к асфальтированной дороге. Недалеко от дома остановка автобусов и магазины. Дом построен для себя, без экономии на стройматериалах и оборудовании. Всё продумано до мелочей. Планировка в доме очень функциональная: Цокольный этаж (93 м2)- 2 свободных помещения ( кабинет, спортзал, зона patio и т.п.), 1 этаж( 106.4м2) - кухня - гостиная 36.5м2 с выходом на террасу, санузел, комната для гостей и кабинет, 2 этаж (100.8м2)- 2 спальни (по 16м2) с выходом на открытую террасу 47м2, санузел. Из преимуществ дома можно выделить: - фундамент шведская плита, - цокольный этаж из ФБС блока, - межэтажные перекрытия из монолитной плиты, - дренажная система, - коммуникации все заведены в дом и подключены : электричество 15кВт, Бойлер, биосептик, - система отопления сделана из качественных материалов (теплые полы), - парковочные места, как за территорией, так и на ней. Преимуществ масса, описывать их можно долго, но чтобы почувствовать атмосферу этого дома и района, нужно прогуляться и увидеть всё своими глазами. Документы подготовлены к продаже, подходит под все виды расчетов. Так как мы являемся партнерами ведущих банков, наше агентство содействует в одобрение ипотечного кредита с выгодными условиями для вас: - льготные программы - скидки по ипотечной ставке до 0,6 % - оформление ипотечного страхования, скидки до 50% - одобрение различных категорий заемщиков: физ. лица, юр. лица, моряки, военные, ИП и т.д. Гарантируем полное юридическое сопровождение сделки, а также: - различные виды регистрации: выездная, электронная, дистанционная, что позволяет сократить срок регистрации до 2-ух рабочих дней. - безопасные расчеты для обеих сторон сделки, что позволяет вам подстраховать свои деньги и не быть привязанным к месту сделки. ЗВОНИТЕ И ЗАПИСЫВАЙТЕСЬ НА ПРОСМОТР! КОНСУЛЬТАЦИЯ БЕСПЛАТНО!