Если цена в объявлении изменится, мы сразу сообщим вам об этом на электронную почту.
Нажимая «Подписаться», вы соглашаетесь с правилами.
продам 2-к, Фруктовая, 44 900 000 ₽
10 июня 2025
Дата публикации объявления
Обн. 10 мая
Дата обновления объявления
2
Количество просмотров (+ просмотры за сегодня)
79 805 ₽/м²
Чистая продажа
Термин "Чистая продажа" означает, что в квартире никто не прописан или
есть куда выписаться и вывезти вещи. Это лучший вариант для покупателя.
Вероятность срыва сделки минимальна.
Код объекта: 1633862. Уютная квартира у Балтийского моря - идеальное место для комфортной жизни и отдыха!
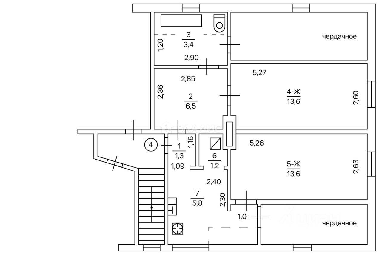
Продается светлая 2-комнатная квартира общей площадью 61.4 квм (45.4 квм + две мансарды по 8 квм каждая) на втором этаже малоквартирного жилого дома довоенной постройки в живописном поселке Приморье, ул. Фруктовая.
Всего в 5 минутах ходьбы до благоустроенного спуска к морю с просторным пляжем и золотым песком. Рядом популярная и знаменитая Филинская бухта с потрясающими видами и прогулочными маршрутами.
Кухня 5.8 квм, Две комнаты по 13.6 квм (на полу паркет), Совмещенный санузел 3.4 квм, Входная группа из двух помещений: коридор 1.3 квм и 6.
Код объекта: 1633862. Уютная квартира у Балтийского моря - идеальное место для комфортной жизни и отдыха!
Продается светлая 2-комнатная квартира общей площадью 61.4 квм (45.4 квм + две мансарды по 8 квм каждая) на втором этаже малоквартирного жилого дома довоенной постройки в живописном поселке Приморье, ул. Фруктовая.
Всего в 5 минутах ходьбы до благоустроенного спуска к морю с просторным пляжем и золотым песком. Рядом популярная и знаменитая Филинская бухта с потрясающими видами и прогулочными маршрутами.
Кухня 5.8 квм, Две комнаты по 13.6 квм (на полу паркет), Совмещенный санузел 3.4 квм, Входная группа из двух помещений: коридор 1.3 квм и 6.5 квм Топочная 1,2 квм
Бонусом к обеим комнатам два просторных мансардных помещения по 8 квм каждое. Эти помещения можно объединить с комнатами, тем самым увеличив их площадь.
Квартира окнами на солнечную сторону, что экономит расходы на отопление. В доме централизованное водоснабжение, природный газ. Отопление газовое автономное Без ремонта.
К квартире прилагаются два сарая в кирпичном здании рядом с домом.
Есть садовый участок с плодовыми и декоративными насаждениями.
В поселке есть вся необходимая инфраструктура: медпункт, школа, д/сад, библиотека, ДК, спортивные и детские площадки. На окраине поселка строится федеральная спортшкола в районе Филинской бухты. Регулярное автобусное сообщение: до Светлогорска 8 км и Калининграда 40 км. С Приморья до Куршской косы действующая велодорожка, в сторону Янтарного в процессе строительства.