Если цена в объявлении изменится, мы сразу сообщим вам об этом на электронную почту.
Нажимая «Подписаться», вы соглашаетесь с правилами.
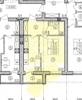
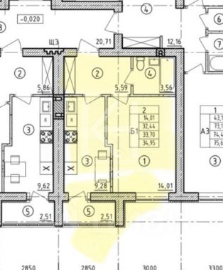
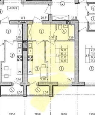
продам 1-к, Базарный переулок, 24 200 000 ₽
27 мая 2025
Дата публикации объявления
Обн. 14 мая
Дата обновления объявления
3
Количество просмотров (+ просмотры за сегодня)
120 000 ₽/м²
Чистая продажа
Термин "Чистая продажа" означает, что в квартире никто не прописан или
есть куда выписаться и вывезти вещи. Это лучший вариант для покупателя.
Вероятность срыва сделки минимальна.
Жилой комплекс расположен в городе Балтийск на переулке Базарный в экологически чистом районе с развитой инфраструктурой и прекрасной транспортной доступностью.
Жилой комплекс ''Жемчужина Балтийска''
ДОМ СДАН!!!
Продажа по договору уступки от физического лица
Жилой комплекс расположен в городе Балтийск на переулке Базарный в экологически чистом районе с развитой инфраструктурой и прекрасной транспортной доступностью.
- Кирпичные дома - Высокая надежность, экологичность и прочность материала - Современные детские игровые площадки - Благоустроенная территория - Вся необходимая инфраструктура рядом: супермаркеты, магазины, школа, детские сады, салоны красоты, поликлиника, спортивный центр, ж/д и автовокзал, автобусная остановка - 15 минут пешком до побережья Балтийского моря, где вас ждут просторный песчаный пляж, кафе и набережная для прогулок
Квартира подходит как для постоянного проживания, так и для выходного пребывания. Наличие детских и игровых площадок, большое количество парковочных мест сделает ваше проживание максимально комфортным!