Если цена в объявлении изменится, мы сразу сообщим вам об этом на электронную почту.
Нажимая «Подписаться», вы соглашаетесь с правилами.
продам дом, Беговая6 700 000 ₽
28 мар 2025
Дата публикации объявления
Обн. вчера
Дата обновления объявления
1
Количество просмотров (+ просмотры за сегодня)
111 667 ₽/м²
Чистая продажа
Термин "Чистая продажа" означает, что в квартире никто не прописан или
есть куда выписаться и вывезти вещи. Это лучший вариант для покупателя.
Вероятность срыва сделки минимальна.
Этажей1
Площадь участка4 сотки
Общая площадь60 м2
ЭлектричествоЕсть
Код объекта: 760727. Купите новый дом 60 кв.м. на участке ИЖС 4 сотки в черте города
Продам дом в конце ул. Суворова. Ходит городской транспорт.
Ориентиры - ул. Суворова, Калининградское шоссе, ул. Тихая, ул. Щепкина, ул. Парковая, ул. Баумана, ул. Суворова.
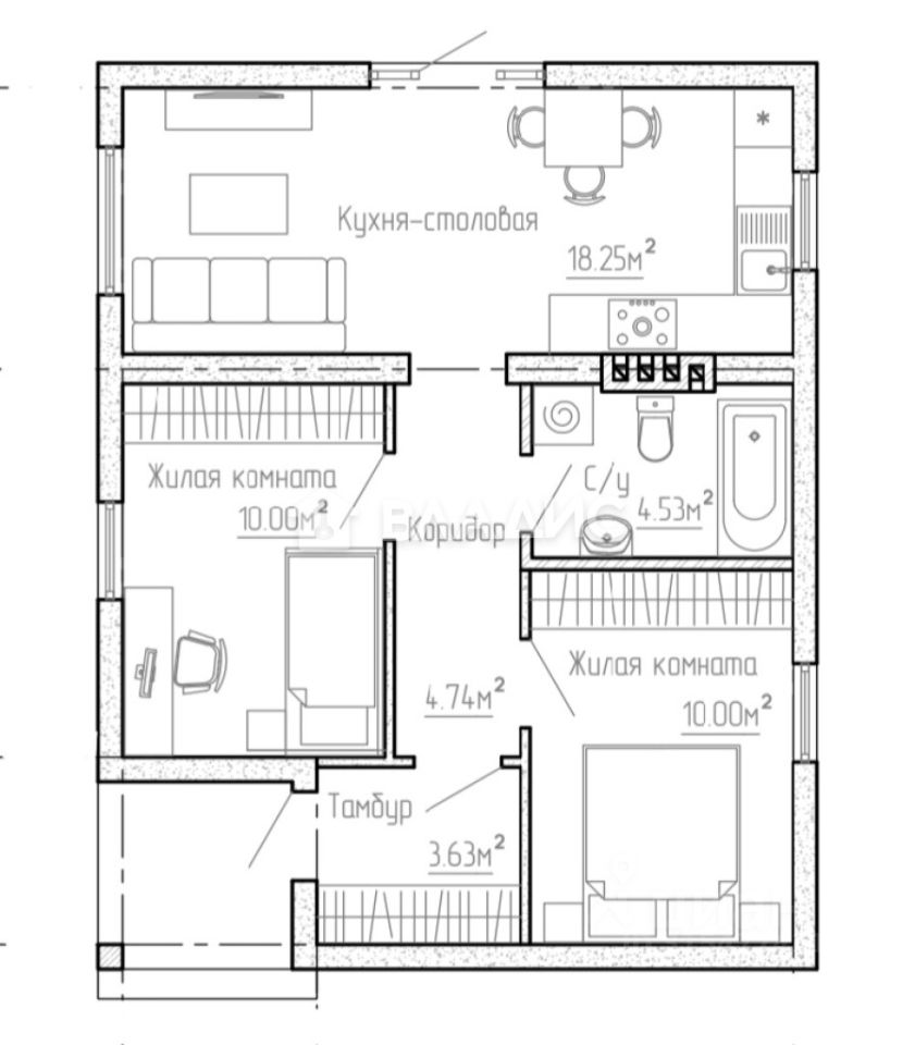
Один уровень - удобная планировка. Две изолированные спальни (10+10 кв.м.). Просторная кухня-гостиная (18.25 кв.м.). Санузел (4.5 кв.м.). Холл (9 кв.м.) с тамбуром и местом для гардероба. Высота потолков 2.9 м.
Дом построен по проекту. Проект будет передан новому собственнику. Есть фото и видео фиксация всех скрытых работ. Возможно подключение газа. Электричество 15 кВт. Канализация биостанция - уже есть.
Код объекта: 760727. Купите новый дом 60 кв.м. на участке ИЖС 4 сотки в черте города
Продам дом в конце ул. Суворова. Ходит городской транспорт.
Ориентиры - ул. Суворова, Калининградское шоссе, ул. Тихая, ул. Щепкина, ул. Парковая, ул. Баумана, ул. Суворова.
Один уровень - удобная планировка. Две изолированные спальни (10+10 кв.м.). Просторная кухня-гостиная (18.25 кв.м.). Санузел (4.5 кв.м.). Холл (9 кв.м.) с тамбуром и местом для гардероба. Высота потолков 2.9 м.
Дом построен по проекту. Проект будет передан новому собственнику. Есть фото и видео фиксация всех скрытых работ. Возможно подключение газа. Электричество 15 кВт. Канализация биостанция - уже есть. Вода скважина - тоже есть. Дом утеплённые, оштукатурен, покрышек. Внутри - качественный серый ключ. Полы залиты, стены оштукатурены. Выполнена электроразводка по дому. Установлен котёл, электросчётчик.
Участок огорожен новым хорошим забором. Ворота, калитка - есть. Вокруг дома - тротуарная плитка, плюс - зоны террасы и парковки.
Дом расположен в развивающемся районе частного сектора. Вокруг - заселённые дома. Рядом - остановки общественного транспорта, средняя школа 28, детский сад 4, супермаркет ''Виктория'', оптово-розничные магазины на Камской, Парк Южный, места отдыха и кафе на Голубых озёрах.
ЗВОНИТЕ СРАЗУ! Организую показ и встречу с застройщиком. Лучше приехать и увидеть своими глазами.