Если цена в объявлении изменится, мы сразу сообщим вам об этом на электронную почту.
Нажимая «Подписаться», вы соглашаетесь с правилами.
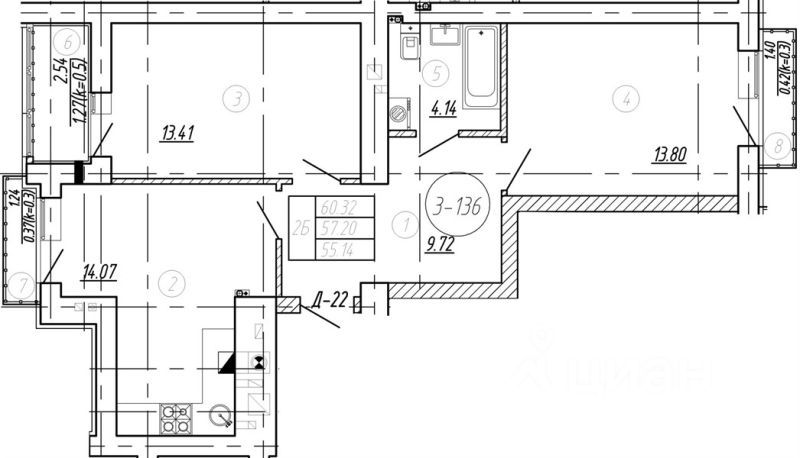
продам 2-к, Понартская, 127 208 000 ₽
21 мар 2025
Дата публикации объявления
Обн. 24 мая
Дата обновления объявления
5
Количество просмотров (+ просмотры за сегодня)
Спецпредложение
Турбо x8
119 496 ₽/м²
Чистая продажа
Термин "Чистая продажа" означает, что в квартире никто не прописан или
есть куда выписаться и вывезти вещи. Это лучший вариант для покупателя.
Вероятность срыва сделки минимальна.
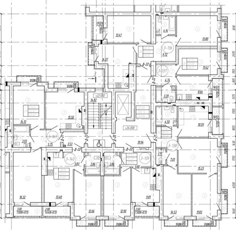
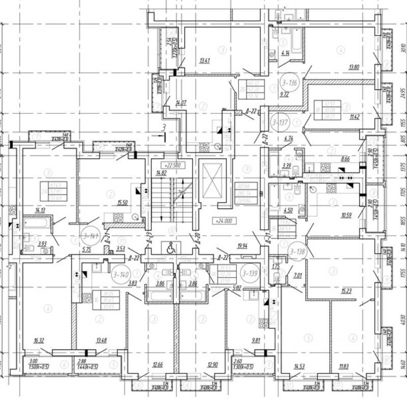
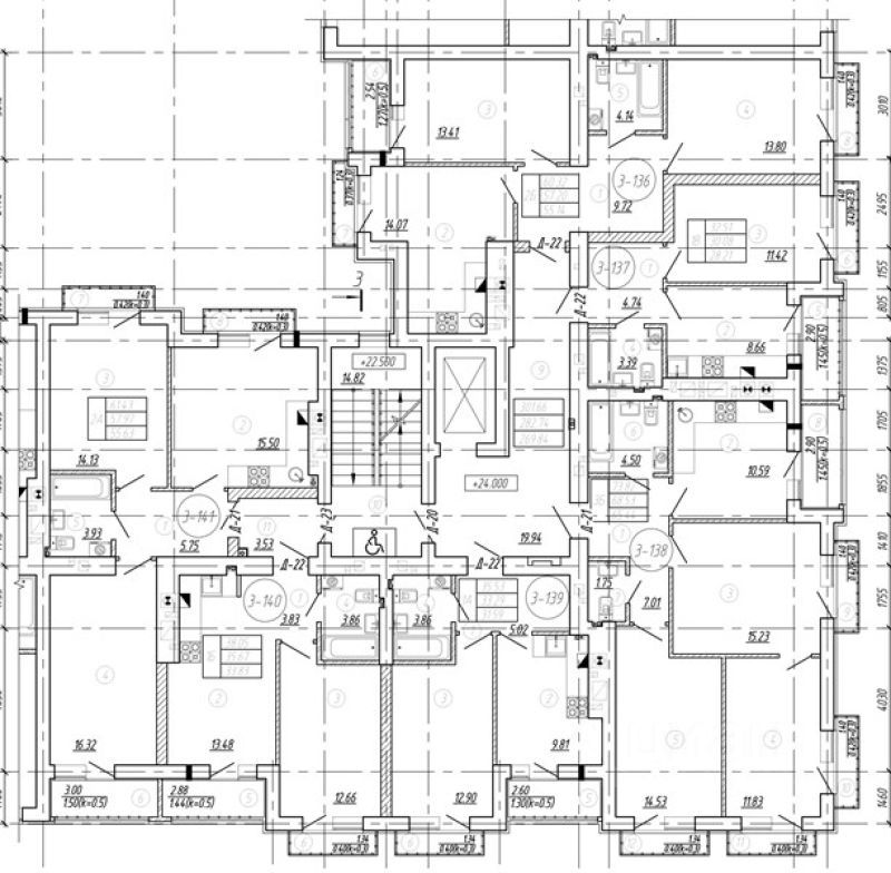
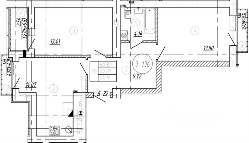
Квартира: 2 к 60,32 кв.м., 9 этаж в комплексе Подсолнухи, 4 очередь, корп.6, сдача: 4кв. , этажей: 9, адрес Калининград г., Понартская ул., д. 12, Застройщик: Модуль-Стройград. Номер в базе: J26193L21873